Back to search results

Beaumaris Court, Spondon

Offers in region of £225,000

Full Description

A well-presented semi-detached bungalow, tucked away in a quiet cul-de-sac among similar style homes. Ideally located just a short walk from several bus stops and within easy reach of Spondon’s village amenities, the property offers off-road parking and boasts a low-maintenance, south-facing rear garden. An early viewing is highly recommended!

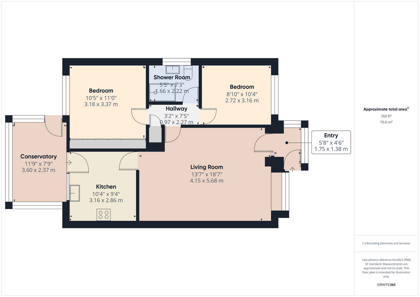
The accommodation is supplemented by gas central heating and UPVC double glazing and in brief comprises of:- entrance porch, living room, fitted kitchen with in-built oven and hob and extractor unit, inner lobby, two double bedrooms and fitted shower room with white three piece suite. Outside, there is a tarmacadam frontage providing off-road parking and to the rear is an enclosed, low maintenance garden being mainly astro-turfed.

Beaumaris Court is a cul-de-sac location well situated for Spondon village having a range of shops and schools together with road links including the A52, M1 motorway, A50, Nottingham East Midlands Airport and access to Derby City Centre.
Pleasant Cul-De-Sac Location
EPC Rating C, Standard Construction
Council Tax Band B, Freehold
Off-Road Parking, South-Facing Rear Garden
Living Room, Conservatory, Shower Room
UPVC Double Glazing, Gas Central Heating


Entrance Porch

Living Room

Kitchen

Conservatory

Bedroom One

Bedroom Two

Shower Room

Buyer Information:

1. Anti-Money Laundering (AML) Regulations: We are legally required to verify all purchasers. The cost is £24 (inc VAT) per person. 2. General: These sales particulars are intended as a general guide only. If any detail is especially important, please contact us—particularly if you’re travelling a long distance to view. 3. Measurements: All measurements are approximate and provided for guidance only. 4. Services: Services, equipment, and appliances have not been tested. Buyers should arrange their own surveys or inspections. 5. These details are given in good faith but do not form part of any offer or contract. Information should be independently verified. Hannells Limited and its employees or agents are not authorised to make representations or warranties regarding the property.


Virtual Tour


Referral Fees

We recommend our preferred partner law firms who are solicitors selected by Us for their experience and efficiency in providing conveyancing services. We receive a referral fee of £225 - £250 per completed transaction. They are independent professionals upon whom You can rely for independent and confidential advice. Their conveyancing charges are available on request. We recommend our preferred partner Mortgage intermediaries who are mortgage specialists available to provide you with the advice you need and who will take care of everything from explaining options and helping you select the right mortgage, to choosing the most suitable protection for you and your family and handling the whole application process. We receive a referral fee of approximately £350 per completed transaction. We recommend our preferred partner Insurance Company who provide Buildings and Contents Insurance. We receive a referral fee of approximately £25 per completed transaction. We recommend our preferred partner Removal Company for home removals. We receive a referral fee of £50 per completed transaction. Prospective purchasers are NOT obliged to use our preferred partner services.

Property Features

  • Well-presented Semi-detached Bungalow
  • Epc Rating C, Standard Construction
  • Off-road Parking, South-facing Rear Garden
  • Upvc Double Glazing, Gas Central Heating
  • Viewing Recommended
  • Pleasant Cul-de-sac Location
  • Council Tax Band B, Freehold
  • Living Room, Conservatory, Shower Room
  • Close To Local Amenities
86
array(2) { ["post_type"]=> string(6) "branch" ["meta_query"]=> array(1) { [0]=> array(3) { ["key"]=> string(14) "related_branch" ["value"]=> string(4) ""86"" ["compare"]=> string(4) "LIKE" } } }

Chaddesden Branch

Located

Hannells Estate Agents
513-515 Nottingham Road
Chaddesden
Derby
DE21 6LZ


Opening Times

Mon – Fri: 09:00am – 17:30pm
Sat: 09:00am – 16:00pm
Sun: Closed

Tel: 01332 281400

Social share

Floorplans

/

Related Properties