Back to search results

Farm Street, Derby, Derbyshire

£850 PM

Full Description

Security Deposit - £980.76

A two-bedroom, mid-terrace close to Derby City Centre. The property benefits from uPVC double glazing, gas central heating and a low maintenance garden to the rear. In brief the property comprises; lounge, dining room and an extended fitted kitchen. To the first floor are good sized double bedrooms and bathroom. Outside the property there is a low maintenance. The property is conveniently located close to local shops, public transport routes, access into the city centre and benefits from road links with the Derby ring road A52 and A38. The property must be viewed internally to be fully appreciated and an early viewing is advised to avoid disappointment.
Close To Derby City Centre
EPC Rating E
Council Tax A
Two Double Bedrooms
Three Piece Family Bathroom
UPVC Double Glazing And Gas Central Heating


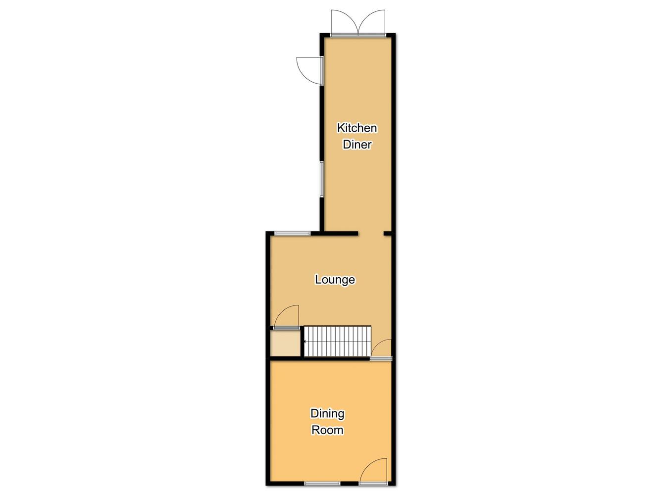
Dining Room

Upvc double glazed door and window to the front elevation. Radiator,storage cupboards and shelves.

Inner Hall

Stairs leading to first floor and radiator.

Lounge

Inset area, two radiators, Upvc double glazed windows to rear elevation, under stairs storage cupboard and coved ceiling. Archway leads to kitchen

Kitchen/Breakfast Room

Fitted with a range of wall and base units with worktops over incorporating stainless steel gas hob with extractor fan over and electric oven. Stainless steel sink unit, plumbing for automatic washing machine and dishwasher. Upvc double glazed door to side and window to side elevation and Upvc double glazed french doors give access to rear. Wall mounted boiler

First Floor Landing

Bedroom 1

Upvc double glazed window to front elevation, radiator and fitted wardrobes providing hanging space and storage.

Bedroom 2

Upvc double glazed window to rear elevation, radiator and fitted wardrobe providing hanging space and storage. Access to ...

Bathroom

Three piece suite low flush WC, pedestal wash hand basin and panelled bath. Radiator, laminate floor, airing cupboard housing hot water cylinder and storage. Upvc double glazed window to rear elevation.

Rear Garden

Shared access leads to the rear. Paved patio enclosed by fence. Outside tap


Referral Fees

We recommend our preferred partner law firms who are solicitors selected by Us for their experience and efficiency in providing conveyancing services. We receive a referral fee of £225 - £250 per completed transaction. They are independent professionals upon whom You can rely for independent and confidential advice. Their conveyancing charges are available on request. We recommend our preferred partner Mortgage intermediaries who are mortgage specialists available to provide you with the advice you need and who will take care of everything from explaining options and helping you select the right mortgage, to choosing the most suitable protection for you and your family and handling the whole application process. We receive a referral fee of approximately £350 per completed transaction. We recommend our preferred partner Insurance Company who provide Buildings and Contents Insurance. We receive a referral fee of approximately £25 per completed transaction. We recommend our preferred partner Removal Company for home removals. We receive a referral fee of £50 per completed transaction. Prospective purchasers are NOT obliged to use our preferred partner services.

Property Features

  • Available Now
  • Epc Rating E
  • Two Double Bedrooms
  • Upvc Double Glazing And Gas Central Heating
  • Internal Viewing Recommended
  • Close To Derby City Centre
  • Council Tax A
  • Three Piece Family Bathroom
  • Low Maintenance Garden
  • Unfurnished
413
array(2) { ["post_type"]=> string(6) "branch" ["meta_query"]=> array(1) { [0]=> array(3) { ["key"]=> string(14) "related_branch" ["value"]=> string(5) ""413"" ["compare"]=> string(4) "LIKE" } } }

Lettings Head Office Branch

Located

Hannells Lettings

17a High Street
Chellaston
Derby
DE73 6TB


Opening Times

Mon – Fri: 09:00am – 17:30pm
Sat: 09:00am – 16:00pm
Sun: Closed

Tel: 01332 294396

Social share

Floorplans

/