Back to search results

Harvey Road, Alvaston

Offers in excess of £175,000

Full Description

** Fantastic Family Home Or Rental Investment ** An excellent opportunity to purchase this spacious three-bedroom, semi-detached family home. Located in the popular area of Alvaston the property benefits from an open-plan kitchen/diner, three spacious bedrooms, a brick built garden room, ideal for a home office, and ample driveway parking – call now to book your viewing!

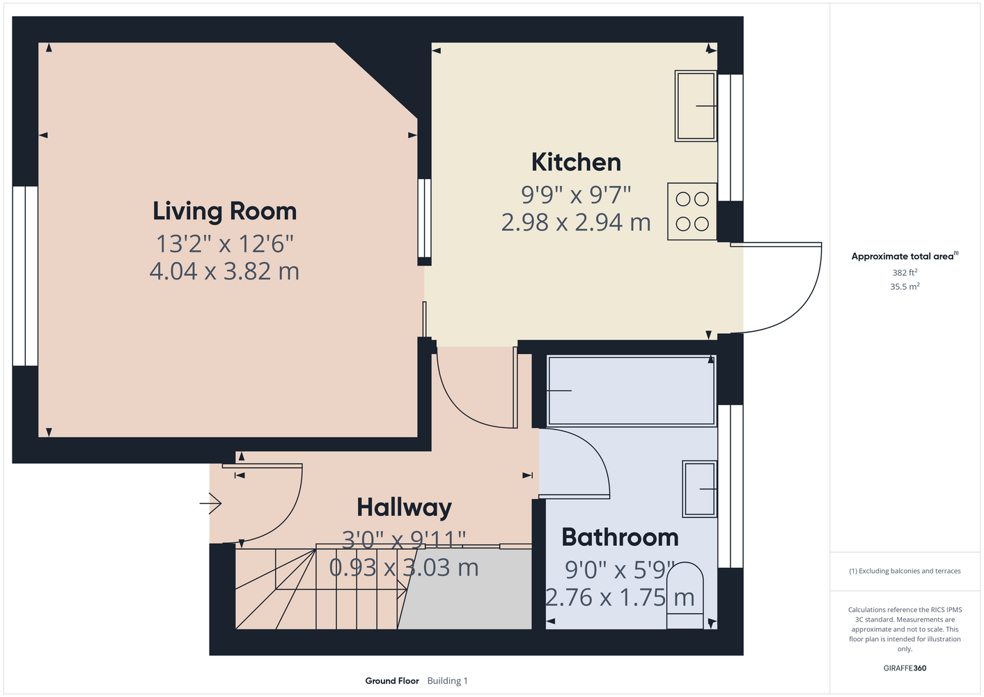
Ideal for both first-time buyers and BTL investors alike the property benefits from uPVC double glazing and gas central heating by way of a combination boiler. The accommodation in brief comprises; Entrance hall, living room to the front, the fitted kitchen, and the family bathroom with shower over bath. To the first floor are three spacious bedrooms. To the rear of the property the current owner has built an additional block built garden room space ideal for conversion to a home office or further conversion to an annexe subject to relevant permissions.

To the front of the property is a gated driveway providing off road parking and to the rear a good-sized garden, mainly laid to lawn and having fenced boundaries. To the front is ample driveway parking.

Harvey Road is very conveniently located for the amenities of Alvaston, close to bus stops and has excellent road links to Pride Park, the City Centre and to the A50, A6 and A52. Call now to book a viewing!!
Ideal For Both Investors & First Time Buyers
EPC Rating D
Freehold
Council Tax Band A
Standard Construction
Ample Driveway Parking


Hallway

Living Room

Kitchen

Bathroom

Bedroom 1

Bedroom 2

Bedroom 3

Buyer Information:

1. Anti-Money Laundering (AML) Regulations: We are legally required to verify all purchasers. The cost is £24 (inc VAT) per person. 2. General: These sales particulars are intended as a general guide only. If any detail is especially important, please contact us—particularly if you’re travelling a long distance to view. 3. Measurements: All measurements are approximate and provided for guidance only. 4. Services: Services, equipment, and appliances have not been tested. Buyers should arrange their own surveys or inspections. 5. These details are given in good faith but do not form part of any offer or contract. Information should be independently verified. Hannells Limited and its employees or agents are not authorised to make representations or warranties regarding the property.


Referral Fees

We recommend our preferred partner law firms who are solicitors selected by Us for their experience and efficiency in providing conveyancing services. We receive a referral fee of £225 - £250 per completed transaction. They are independent professionals upon whom You can rely for independent and confidential advice. Their conveyancing charges are available on request. We recommend our preferred partner Mortgage intermediaries who are mortgage specialists available to provide you with the advice you need and who will take care of everything from explaining options and helping you select the right mortgage, to choosing the most suitable protection for you and your family and handling the whole application process. We receive a referral fee of approximately £350 per completed transaction. We recommend our preferred partner Insurance Company who provide Buildings and Contents Insurance. We receive a referral fee of approximately £25 per completed transaction. We recommend our preferred partner Removal Company for home removals. We receive a referral fee of £50 per completed transaction. Prospective purchasers are NOT obliged to use our preferred partner services.

Property Features

  • No Upward Chain
  • Epc Rating D
  • Council Tax Band A
  • Ample Driveway Parking
  • Ideal For Both Investors & First Time Buyers
  • Freehold
  • Standard Construction
  • Walking Distance To Alvaston's Local Amenities
85
array(2) { ["post_type"]=> string(6) "branch" ["meta_query"]=> array(1) { [0]=> array(3) { ["key"]=> string(14) "related_branch" ["value"]=> string(4) ""85"" ["compare"]=> string(4) "LIKE" } } }

Alvaston Branch

Located

Hannells Estate Agents
27 Shardlow Road
Alvaston
Derby
DE24 0JG


Opening Times

Mon – Fri: 09:00am – 17:30pm
Sat: 09:00am – 16:00pm
Sun: Closed

Tel: 01332 573130

Social share

Floorplans

/

Related Properties