Back to search results

Oregon Way, Chaddesden

Sold (STC)

Full Description

We are delighted to offer for sale this well-presented three-bedroom terraced home, available with no upward chain—an excellent opportunity for first-time buyers. Ideally situated in a popular and well-established residential area, the property benefits from close proximity to reputable schools and a range of local amenities.

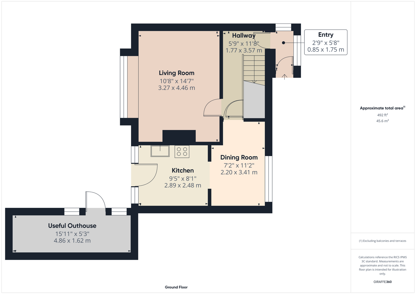
The property offers scope for further modernisation and briefly comprises: Entrance porch and hallway, bright and spacious lounge, separate dining room and galley style kitchen. To the first floor you’ll find three bedrooms and family bathroom with four piece suite.

To the front elevation is a driveway providing off road parking. To the rear, a generous sized garden complete with patio area and outbuilding, ideal for storage or conversion.

Oregon Way is ideally located to offer access to all local amenities including shops, schools, and public transport links within Chaddesden and also offers excellent access to the A52/A50, M1, Nottingham and beyond.
No Upward Chain, Ideal First Time Buy
EPC Rating D, Standard Construction
Council Tax Band A, Freehold
Living Room And Separate Dining Room
Enclosed Rear Garden With Useful Outbuilding
Driveway Providing Off Road Parking


Entrance Porch

Hallway

Living Room

Dining Room

Kitchen

First Floor Landing

Bedroom One

Bedroom Two

Bedroom Three

Bathroom

Useful Outhouse/Storage

Buyer Information:

1. Anti-Money Laundering (AML) Regulations: We are legally required to verify all purchasers. The cost is £24 (inc VAT) per person. 2. General: These sales particulars are intended as a general guide only. If any detail is especially important, please contact us—particularly if you’re travelling a long distance to view. 3. Measurements: All measurements are approximate and provided for guidance only. 4. Services: Services, equipment, and appliances have not been tested. Buyers should arrange their own surveys or inspections. 5. These details are given in good faith but do not form part of any offer or contract. Information should be independently verified. Hannells Limited and its employees or agents are not authorised to make representations or warranties regarding the property.


Virtual Tour


Referral Fees

We recommend our preferred partner law firms who are solicitors selected by Us for their experience and efficiency in providing conveyancing services. We receive a referral fee of £225 - £250 per completed transaction. They are independent professionals upon whom You can rely for independent and confidential advice. Their conveyancing charges are available on request. We recommend our preferred partner Mortgage intermediaries who are mortgage specialists available to provide you with the advice you need and who will take care of everything from explaining options and helping you select the right mortgage, to choosing the most suitable protection for you and your family and handling the whole application process. We receive a referral fee of approximately £350 per completed transaction. We recommend our preferred partner Insurance Company who provide Buildings and Contents Insurance. We receive a referral fee of approximately £25 per completed transaction. We recommend our preferred partner Removal Company for home removals. We receive a referral fee of £50 per completed transaction. Prospective purchasers are NOT obliged to use our preferred partner services.

Property Features

  • Three Bedroomed Mid Terrace Property
  • Epc Rating D, Standard Construction
  • Living Room And Separate Dining Room
  • Driveway Providing Off Road Parking
  • No Upward Chain, Ideal First Time Buy
  • Council Tax Band A, Freehold
  • Enclosed Rear Garden With Useful Outbuilding
  • Viewing Recommended
86
array(2) { ["post_type"]=> string(6) "branch" ["meta_query"]=> array(1) { [0]=> array(3) { ["key"]=> string(14) "related_branch" ["value"]=> string(4) ""86"" ["compare"]=> string(4) "LIKE" } } }

Chaddesden Branch

Located

Hannells Estate Agents
513-515 Nottingham Road
Chaddesden
Derby
DE21 6LZ


Opening Times

Mon – Fri: 09:00am – 17:30pm
Sat: 09:00am – 16:00pm
Sun: Closed

Tel: 01332 281400

Social share

Floorplans

/

Related Properties