Back to search results

Rectory Lane, Breadsall

Sold (STC)

Full Description

** SELECT PROPERTY ** Ideally located in the beautiful village of Breadsall, this spacious and well-presented four-bedroom detached home offers spacious accommodation throughout, including a generous lounge opening to a dining area, a fitted kitchen and a four-piece family bathroom. Overlooking a pleasant green in the heart of the village, it will make a superb and versatile home!

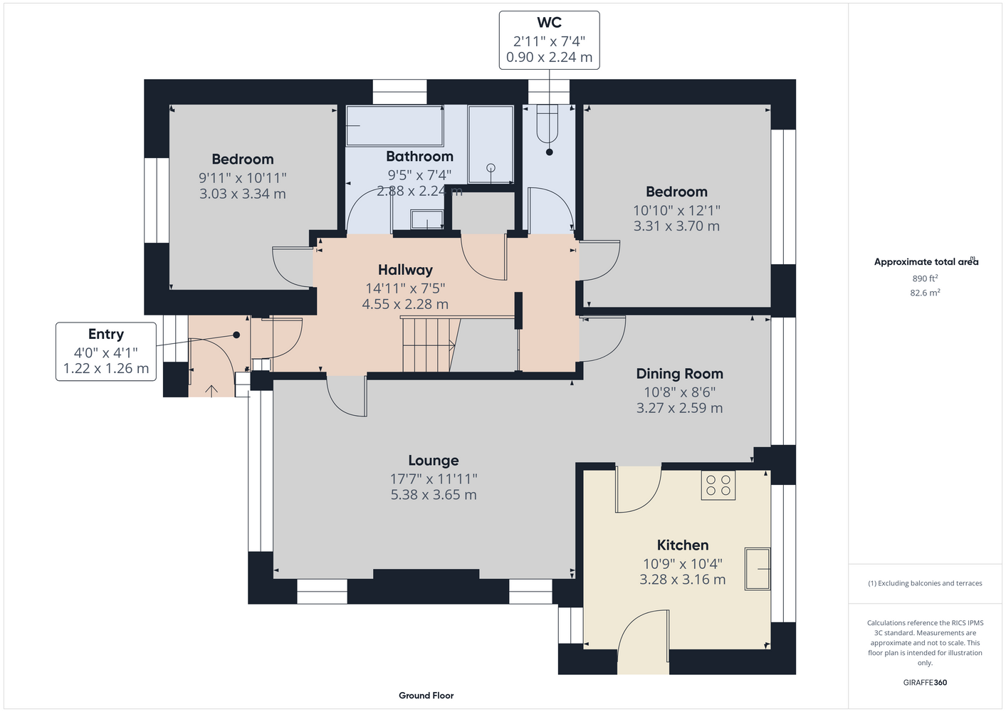
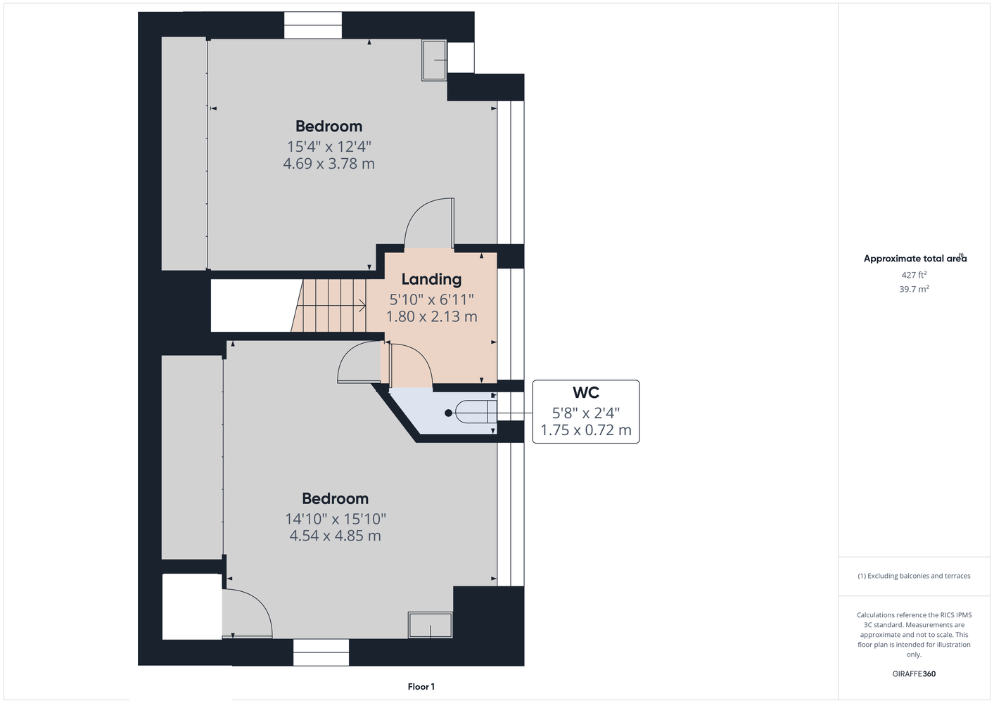
Benefitting from uPVC double glazing and gas central heating, the property is offered for sale with no upward chain, and the accommodation in brief comprises: Entrance Hall; spacious lounge with feature central fireplace and opening through to a generous dining room; well-appointed fitted kitchen; two double ground floor bedrooms, both of which offer fitted wardrobes; fitted ground floor bathroom with separate shower cubicle; ground floor W.C; first floor landing; two generous first floor double bedrooms, both of which include vanity wash basins and fitted bedroom furniture and a first floor W.C.

To the front of the property is a neat lawned garden space with mixed flower and shrubbery borders, adjacent to a driveway providing ample off-road parking and giving access to a detached double garage.

To the rear is an enclosed garden with patio seating area, lawn and mixed flower and shrubbery beds.

This superb property is located right in the heart of this beautiful village and conveniently situated close to local shops, public transport routes, sporting activities, including a local cricket club and bowling green, together with well-regarded schools within Breadsall. The property is also conveniently located close to Breadsall Priory Hotel & Country Club and has excellent road links with the A38 and A6 road networks, leading into Derby City Centre and out towards the M1 motorway.
No Upward Chain
EPC Rating D
Council Tax Band E
Freehold
Two Ground Floor Bedrooms & Two First Floor Bedrooms
Driveway & Detached Double Garage


Entrance Porch

Entrance Hall

Lounge

Dining Room

Kitchen

Bedroom One

Bedroom Two

Bathroom

Cloakroom With W.C

First Floor Landing

Bedroom Three

Bedroom Four

Separate W.C

Buyer Information:

1. Anti-Money Laundering (AML) Regulations: We are legally required to verify all purchasers. The cost is £24 (inc VAT) per person. 2. General: These sales particulars are intended as a general guide only. If any detail is especially important, please contact us—particularly if you’re travelling a long distance to view. 3. Measurements: All measurements are approximate and provided for guidance only. 4. Services: Services, equipment, and appliances have not been tested. Buyers should arrange their own surveys or inspections. 5. These details are given in good faith but do not form part of any offer or contract. Information should be independently verified. Hannells Limited and its employees or agents are not authorised to make representations or warranties regarding the property.


Virtual Tour


Referral Fees

We recommend our preferred partner law firms who are solicitors selected by Us for their experience and efficiency in providing conveyancing services. We receive a referral fee of £225 - £250 per completed transaction. They are independent professionals upon whom You can rely for independent and confidential advice. Their conveyancing charges are available on request. We recommend our preferred partner Mortgage intermediaries who are mortgage specialists available to provide you with the advice you need and who will take care of everything from explaining options and helping you select the right mortgage, to choosing the most suitable protection for you and your family and handling the whole application process. We receive a referral fee of approximately £350 per completed transaction. We recommend our preferred partner Insurance Company who provide Buildings and Contents Insurance. We receive a referral fee of approximately £25 per completed transaction. We recommend our preferred partner Removal Company for home removals. We receive a referral fee of £50 per completed transaction. Prospective purchasers are NOT obliged to use our preferred partner services.

Property Features

  • Spacious, Standard Construction Detached Home In Village Location
  • Epc Rating D
  • Freehold
  • Driveway & Detached Double Garage
  • Spacious Rear Garden
  • No Upward Chain
  • Council Tax Band E
  • Two Ground Floor Bedrooms & Two First Floor Bedrooms
  • Lounge, Dining Room & Fitted Kitchen
66
array(2) { ["post_type"]=> string(6) "branch" ["meta_query"]=> array(1) { [0]=> array(3) { ["key"]=> string(14) "related_branch" ["value"]=> string(4) ""66"" ["compare"]=> string(4) "LIKE" } } }

Allestree Branch

Located

Hannells Estate Agents
18 Park Farm Shopping Centre
Allestree
Derby
DE22 2QN


Opening Times

Mon – Fri: 09:00am – 17:30pm
Sat: 09:00am – 16:00pm
Sun: Closed

Tel: 01332 556633

Social share

Floorplans

/