Back to search results

Scarsdale Avenue, Allestree

Sold (STC)

Full Description

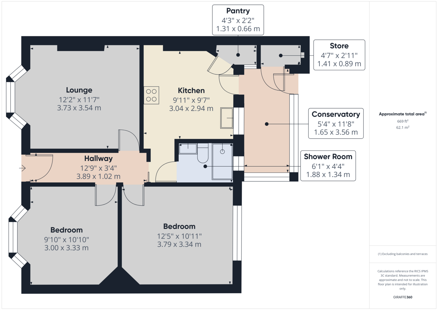
** NO UPWARD CHAIN ** This spacious detached bungalow is ideally located in the sought-after area of Allestree and offers a good-sized lounge, spacious fitted kitchen and modernised shower room. With a mature well-proportioned rear garden, driveway and detached garage, this property has the potential to make a fantastic home!

Benefiting from gas central heating, the accommodation in brief comprises: Entrance Hall; well-proportioned lounge with feature bay window; fitted kitchen with integrated fridge and pantry store; rear conservatory; two good sized bedrooms and a modern fitted shower room.

To the front of the property is an area of hard standing providing off road parking along with a further driveway to the side giving access to a detached garage at the rear. To the rear is a mature garden with patio seating area, lawn and mixed mature flower beds, shrubbery and fruit trees.

Scarsdale Avenue is conveniently situated for access to useful amenities including shops, schools, public transport routes, the University, recreational facilities including Markeaton Park, Allestree Park, Darley Park and Allestree recreational ground, together with useful road links via the A52, A6, A38 and A50 networks.
No Upward Chain
EPC Rating B
Council Tax Band C
Freehold
Driveway & Garage
Good Sized Lounge


Entrance Hall

Lounge

Kitchen

Conservatory

Bedroom One

Bedroom Two

Shower Room

Buyer Information:

1. Anti-Money Laundering (AML) Regulations: We are legally required to verify all purchasers. The cost is £24 (inc VAT) per person. 2. General: These sales particulars are intended as a general guide only. If any detail is especially important, please contact us—particularly if you’re travelling a long distance to view. 3. Measurements: All measurements are approximate and provided for guidance only. 4. Services: Services, equipment, and appliances have not been tested. Buyers should arrange their own surveys or inspections. 5. These details are given in good faith but do not form part of any offer or contract. Information should be independently verified. Hannells Limited and its employees or agents are not authorised to make representations or warranties regarding the property.


Referral Fees

We recommend our preferred partner law firms who are solicitors selected by Us for their experience and efficiency in providing conveyancing services. We receive a referral fee of £225 - £250 per completed transaction. They are independent professionals upon whom You can rely for independent and confidential advice. Their conveyancing charges are available on request. We recommend our preferred partner Mortgage intermediaries who are mortgage specialists available to provide you with the advice you need and who will take care of everything from explaining options and helping you select the right mortgage, to choosing the most suitable protection for you and your family and handling the whole application process. We receive a referral fee of approximately £350 per completed transaction. We recommend our preferred partner Insurance Company who provide Buildings and Contents Insurance. We receive a referral fee of approximately £25 per completed transaction. We recommend our preferred partner Removal Company for home removals. We receive a referral fee of £50 per completed transaction. Prospective purchasers are NOT obliged to use our preferred partner services.

Property Features

  • Spacious, Standard Construction Two Bedroom Detached Bungalow
  • Epc Rating B
  • Freehold
  • Good Sized Lounge
  • Modernised Shower Room
  • No Upward Chain
  • Council Tax Band C
  • Driveway & Garage
  • Fitted Kitchen & Conservatory
  • Mature Rear Garden
66
array(2) { ["post_type"]=> string(6) "branch" ["meta_query"]=> array(1) { [0]=> array(3) { ["key"]=> string(14) "related_branch" ["value"]=> string(4) ""66"" ["compare"]=> string(4) "LIKE" } } }

Allestree Branch

Located

Hannells Estate Agents
18 Park Farm Shopping Centre
Allestree
Derby
DE22 2QN


Opening Times

Mon – Fri: 09:00am – 17:30pm
Sat: 09:00am – 16:00pm
Sun: Closed

Tel: 01332 556633

Social share

Floorplans

/

Related Properties