Back to search results

Sherwin Street, Darley Abbey

Sold (STC)

Full Description

** NO UPWARD CHAIN ** A well-presented, three-bedroom period semi-detached property, offered to the market with no upward chain. The home is fully double-glazed and gas centrally heated, ideally situated for convenient access to Derby city centre and the university campus. This makes it an excellent opportunity for both first-time buyers, and investors seeking a strong rental property!

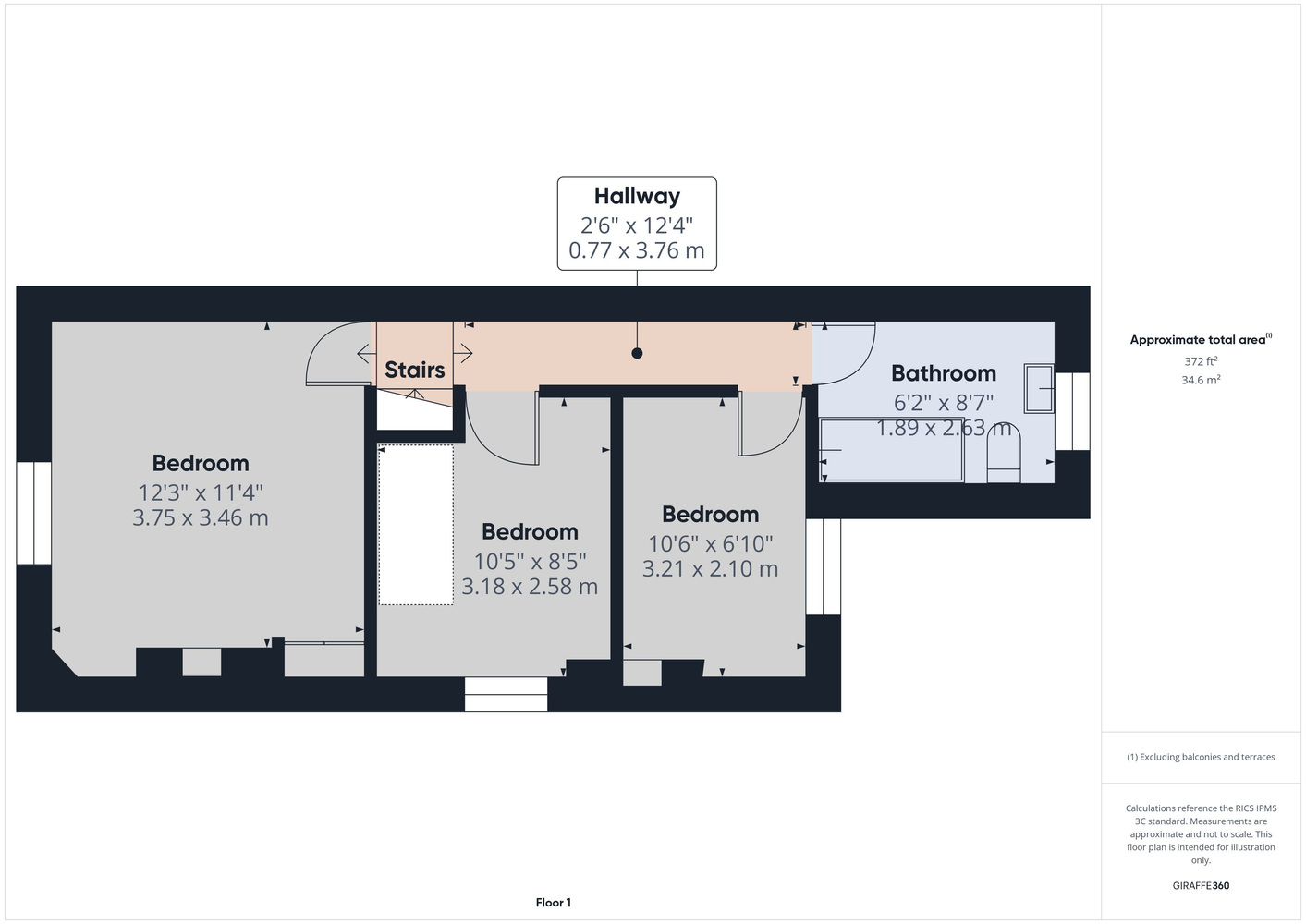
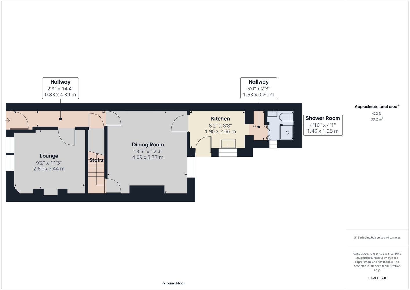
The accommodation briefly comprises: a welcoming reception hallway, a lounge, a useful understairs storage cupboard, a dining room, and a fitted kitchen. A rear lobby leads to a ground-floor shower room and WC, completing the ground floor. To the first floor there are three well-proportioned bedrooms and a family bathroom.

Externally, the property enjoys a private, enclosed rear garden, attractively landscaped for low-maintenance living—perfect for relaxing or entertaining.

The property benefits from being close to a wide range of local shops, supermarkets, cafés, and restaurants, as well as highly regarded schools. Excellent transport links are within easy reach, including bus routes into the city centre and road networks connecting to the A38 and A52. For leisure and recreation, nearby parks, fitness facilities, and cultural attractions such as Derby Theatre and the Intu shopping centre provide plenty of options for residents.
No Upward Chain
EPC Rating B
Council Tax Band B
Freehold
First Floor Bathroom & Ground Floor Shower Room
Double Glazed & Centrally Heated


Reception Hallway

Lounge

Dining Room

Kitchen

Inner Hallway

Shower Room

First Floor Landing

Bedroom

Bedroom

Bedroom

Bathroom

Buyer Information:

1. Anti-Money Laundering (AML) Regulations: We are legally required to verify all purchasers. The cost is £24 (inc VAT) per person. 2. General: These sales particulars are intended as a general guide only. If any detail is especially important, please contact us—particularly if you’re travelling a long distance to view. 3. Measurements: All measurements are approximate and provided for guidance only. 4. Services: Services, equipment, and appliances have not been tested. Buyers should arrange their own surveys or inspections. 5. These details are given in good faith but do not form part of any offer or contract. Information should be independently verified. Hannells Limited and its employees or agents are not authorised to make representations or warranties regarding the property.


Virtual Tour


Referral Fees

We recommend our preferred partner law firms who are solicitors selected by Us for their experience and efficiency in providing conveyancing services. We receive a referral fee of £225 - £250 per completed transaction. They are independent professionals upon whom You can rely for independent and confidential advice. Their conveyancing charges are available on request. We recommend our preferred partner Mortgage intermediaries who are mortgage specialists available to provide you with the advice you need and who will take care of everything from explaining options and helping you select the right mortgage, to choosing the most suitable protection for you and your family and handling the whole application process. We receive a referral fee of approximately £350 per completed transaction. We recommend our preferred partner Insurance Company who provide Buildings and Contents Insurance. We receive a referral fee of approximately £25 per completed transaction. We recommend our preferred partner Removal Company for home removals. We receive a referral fee of £50 per completed transaction. Prospective purchasers are NOT obliged to use our preferred partner services.

Property Features

  • Period, Standard Construction, Three-bedroom Semi-detached Property
  • Epc Rating B
  • Freehold
  • Double Glazed & Centrally Heated
  • Excellent Investment Opportunity Or First Home
  • No Upward Chain
  • Council Tax Band B
  • First Floor Bathroom & Ground Floor Shower Room
  • Enclosed Rear Yard
  • Close To City Centre Amenities
66
array(2) { ["post_type"]=> string(6) "branch" ["meta_query"]=> array(1) { [0]=> array(3) { ["key"]=> string(14) "related_branch" ["value"]=> string(4) ""66"" ["compare"]=> string(4) "LIKE" } } }

Allestree Branch

Located

Hannells Estate Agents
18 Park Farm Shopping Centre
Allestree
Derby
DE22 2QN


Opening Times

Mon – Fri: 09:00am – 17:30pm
Sat: 09:00am – 16:00pm
Sun: Closed

Tel: 01332 556633

Social share

Floorplans

/