Back to search results

Trent Street, Alvaston

Asking Price £200,000

Full Description

** Fantastic Investment Opportunity ** A five-bedroom HMO with the potential to generate at least £30,000 gross per annum when fully occupied. The property is conveniently located on Trent Street, just off London Road and is ideally situated for commuting tenants with easy access to Pride Park, the City Centre and Rolls-Royce on Raynesway. The property comprises five-bedrooms, all with their own en-suite shower rooms, a modern communal kitchen/diner, on street parking and a garden to the rear!

Please note – three of the rooms are currently vacant but are being advertised for new tenants.
Potential Gross Rental Income Of £30,000 Per Annum
EPC Rating D
Freehold
Council Tax Band A
Standard Construction
On Street Parking


Kitchen

Bedroom 1

Ensuite

Bedroom 2

Ensuite

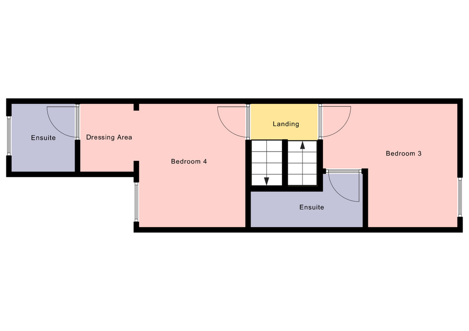
Bedroom 3

Ensuite

Bedroom 4

Dressing Area

Ensuite

Bedroom 5

Ensuite

Buyer Information:

1. Anti-Money Laundering (AML) Regulations: We are legally required to verify all purchasers. The cost is £24 (inc VAT) per person. 2. General: These sales particulars are intended as a general guide only. If any detail is especially important, please contact us—particularly if you’re travelling a long distance to view. 3. Measurements: All measurements are approximate and provided for guidance only. 4. Services: Services, equipment, and appliances have not been tested. Buyers should arrange their own surveys or inspections. 5. These details are given in good faith but do not form part of any offer or contract. Information should be independently verified. Hannells Limited and its employees or agents are not authorised to make representations or warranties regarding the property.


Referral Fees

We recommend our preferred partner law firms who are solicitors selected by Us for their experience and efficiency in providing conveyancing services. We receive a referral fee of £225 - £250 per completed transaction. They are independent professionals upon whom You can rely for independent and confidential advice. Their conveyancing charges are available on request. We recommend our preferred partner Mortgage intermediaries who are mortgage specialists available to provide you with the advice you need and who will take care of everything from explaining options and helping you select the right mortgage, to choosing the most suitable protection for you and your family and handling the whole application process. We receive a referral fee of approximately £350 per completed transaction. We recommend our preferred partner Insurance Company who provide Buildings and Contents Insurance. We receive a referral fee of approximately £25 per completed transaction. We recommend our preferred partner Removal Company for home removals. We receive a referral fee of £50 per completed transaction. Prospective purchasers are NOT obliged to use our preferred partner services.

Property Features

  • End Terrace, Five-bedroom, All En-suite Hmo Property
  • Epc Rating D
  • Council Tax Band A
  • On Street Parking
  • Potential Gross Rental Income Of £30,000 Per Annum
  • Freehold
  • Standard Construction
  • Excellent Investment Potential
85
array(2) { ["post_type"]=> string(6) "branch" ["meta_query"]=> array(1) { [0]=> array(3) { ["key"]=> string(14) "related_branch" ["value"]=> string(4) ""85"" ["compare"]=> string(4) "LIKE" } } }

Alvaston Branch

Located

Hannells Estate Agents
27 Shardlow Road
Alvaston
Derby
DE24 0JG


Opening Times

Mon – Fri: 09:00am – 17:30pm
Sat: 09:00am – 16:00pm
Sun: Closed

Tel: 01332 573130

Social share

Floorplans

/

Related Properties