** NO UPWARD CHAIN ** Located in the sought after and desirable area off Kedleston Road and backing on to pleasant green space, this spacious and well-presented two double bedroom traditional terrace home is offered for sale with no upward chain. With two reception rooms and a neat rear garden, it will make a superb first home or investment property.
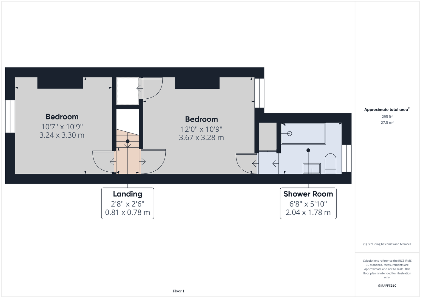
Benefitting from uPVC double glazing and gas central heating, the accommodation in brief comprises: Spacious lounge with central feature fireplace; separate dining room with stairs off to the first floor; modern and well-appointed fitted kitchen; first floor landing; two double first floor bedrooms, both with period style decorative cast iron fireplaces and a modern high quality fitted shower room.
To the rear of the property is a neat garden space with elevated timber decked seating area and brick-built store.
Watson Street is situated in a convenient area of Derby, located close to the University of Derby and within easy reach of the city centre. The area benefits from good public transport links and nearby local amenities, including shops, cafes, and parks and is popular with students and professionals due to its proximity to the university. Its central location provides straightforward access to major road networks such as the A38, A52 and M1.
No Upward Chain
EPC Rating D
Council Tax Band A
Freehold
On Street Parking
Desirable Location Close To Pleasant Green Space
1. Anti-Money Laundering (AML) Regulations: We are legally required to verify all purchasers. The cost is £24 (inc VAT) per person. 2. General: These sales particulars are intended as a general guide only. If any detail is especially important, please contact us—particularly if you’re travelling a long distance to view. 3. Measurements: All measurements are approximate and provided for guidance only. 4. Services: Services, equipment, and appliances have not been tested. Buyers should arrange their own surveys or inspections. 5. These details are given in good faith but do not form part of any offer or contract. Information should be independently verified. Hannells Limited and its employees or agents are not authorised to make representations or warranties regarding the property.
We recommend our preferred partner law firms who are solicitors selected by Us for their experience and efficiency in providing conveyancing services. We receive a referral fee of £225 - £250 per completed transaction. They are independent professionals upon whom You can rely for independent and confidential advice. Their conveyancing charges are available on request. We recommend our preferred partner Mortgage intermediaries who are mortgage specialists available to provide you with the advice you need and who will take care of everything from explaining options and helping you select the right mortgage, to choosing the most suitable protection for you and your family and handling the whole application process. We receive a referral fee of approximately £350 per completed transaction. We recommend our preferred partner Insurance Company who provide Buildings and Contents Insurance. We receive a referral fee of approximately £25 per completed transaction. We recommend our preferred partner Removal Company for home removals. We receive a referral fee of £50 per completed transaction. Prospective purchasers are NOT obliged to use our preferred partner services.
Located
Hannells Estate Agents
18 Park Farm Shopping Centre
Allestree
Derby
DE22 2QN
Opening Times
Mon – Fri: 09:00am – 17:30pm
Sat: 09:00am – 16:00pm
Sun: Closed
Tel: 01332 556633
Watson Street, Derby – NVB-76651130
£150,000