Back to search results

Wood Road, Chaddesden

Asking Price £218,000

Full Description

Located in the popular area of Chaddesden and within walking distance of local shops and schools (Cavendish Close School catchment), this spacious three-bedroom, semi-detached home features a lounge diner, fitted kitchen, cloakroom with WC and a conservatory. Viewing is a must!

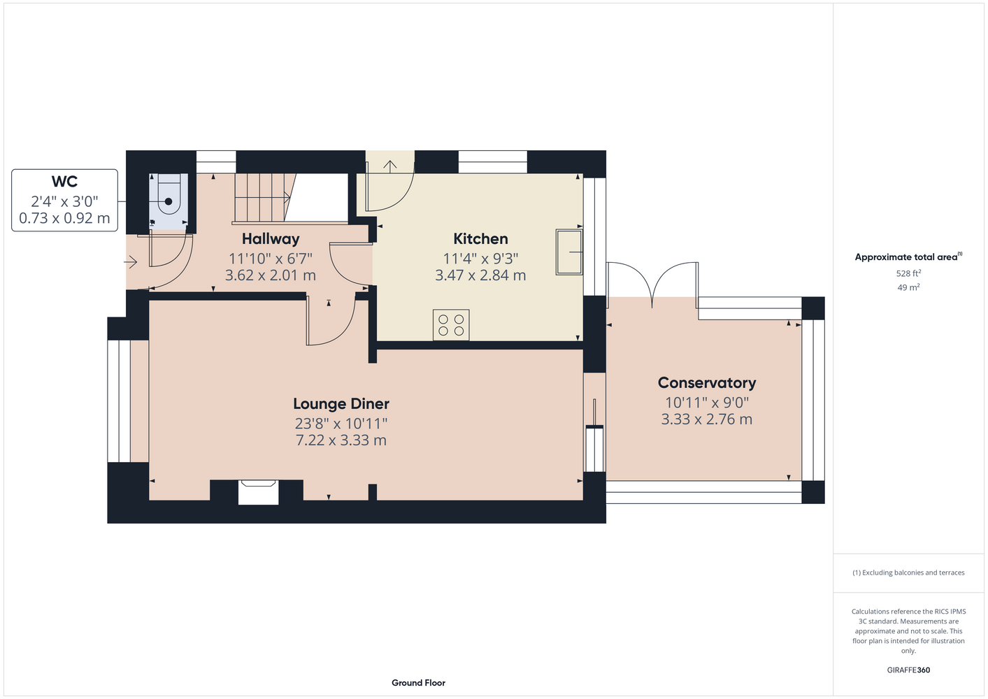
Benefitting from uPVC double glazing, gas central heating and security alarm system, the accommodation in brief comprises: Entrance Hall; cloakroom with W.C; spacious lounge with feature central fireplace; dining area; uPVC double glazed conservatory; kitchen with a range of appliances; first floor landing; three well-proportioned first floor bedrooms and a fitted bathroom.

To the front of the property is a generous driveway with gated access to the the rear. To the rear is enclosed garden with patio seating area and three storage sheds The property also offers a most generous garage to the rear.

Wood Road occupies an established residential location close to local amenities including shops, schools (including Cavendish Close and Lees Brook) and transport links together with easy access for Derby City Centre. An early viewing is essential to be appreciated.
Ideal First Time Buy/Family Home
EPC Rating D, Standard Construction Home
Council Tax Band A, Freehold
Driveway & Garage
Lounge Diner & Conservatory
Fitted Kitchen & Bathroom


Entrance Hall

Cloakroom With W.C

Lounge Diner

Conservatory

Kitchen

To include fridge, dishwasher, washing machine and tumble dryer.

First Floor Landing

Bedroom One

Bedroom Two

Bedroom Three

Bathroom

Please Note

One bedroom includes a single bed and sliding wardrobe with co-ordinated bedding and lampshade.

Outside

To the front of the property is a low maintenance stoned garden area and a driveway providing off-road parking with gated access to the the rear. To the rear is enclosed garden with patio seating area, three storage sheds and garage. The sale is to include a range of garden furniture and fruit trees.

Buyer Information:

1. Anti-Money Laundering (AML) Regulations: We are legally required to verify all purchasers. The cost is £24 (inc VAT) per person. 2. General: These sales particulars are intended as a general guide only. If any detail is especially important, please contact us—particularly if you’re travelling a long distance to view. 3. Measurements: All measurements are approximate and provided for guidance only. 4. Services: Services, equipment, and appliances have not been tested. Buyers should arrange their own surveys or inspections. 5. These details are given in good faith but do not form part of any offer or contract. Information should be independently verified. Hannells Limited and its employees or agents are not authorised to make representations or warranties regarding the property.


Referral Fees

We recommend our preferred partner law firms who are solicitors selected by Us for their experience and efficiency in providing conveyancing services. We receive a referral fee of £225 - £250 per completed transaction. They are independent professionals upon whom You can rely for independent and confidential advice. Their conveyancing charges are available on request. We recommend our preferred partner Mortgage intermediaries who are mortgage specialists available to provide you with the advice you need and who will take care of everything from explaining options and helping you select the right mortgage, to choosing the most suitable protection for you and your family and handling the whole application process. We receive a referral fee of approximately £350 per completed transaction. We recommend our preferred partner Insurance Company who provide Buildings and Contents Insurance. We receive a referral fee of approximately £25 per completed transaction. We recommend our preferred partner Removal Company for home removals. We receive a referral fee of £50 per completed transaction. Prospective purchasers are NOT obliged to use our preferred partner services.

Property Features

  • Spacious Three-bedroom Home
  • Epc Rating D, Standard Construction Home
  • Driveway & Garage
  • Fitted Kitchen & Bathroom
  • Cavendish Close School Catchment
  • Ideal First Time Buy/family Home
  • Council Tax Band A, Freehold
  • Lounge Diner & Conservatory
  • Cloakroom With Wc
86
array(2) { ["post_type"]=> string(6) "branch" ["meta_query"]=> array(1) { [0]=> array(3) { ["key"]=> string(14) "related_branch" ["value"]=> string(4) ""86"" ["compare"]=> string(4) "LIKE" } } }

Chaddesden Branch

Located

Hannells Estate Agents
513-515 Nottingham Road
Chaddesden
Derby
DE21 6LZ


Opening Times

Mon – Fri: 09:00am – 17:30pm
Sat: 09:00am – 16:00pm
Sun: Closed

Tel: 01332 281400

Social share

Floorplans

/

Related Properties