Back to search results

Aylesbury Avenue, Chaddesden

Asking Price £280,000

Full Description

This substantially extended semi-detached home has undergone a comprehensive programme of modernisation and improvement over recent years, offering versatile and contemporary living accommodation throughout and an early viewing is highly recommended to be fully appreciated.

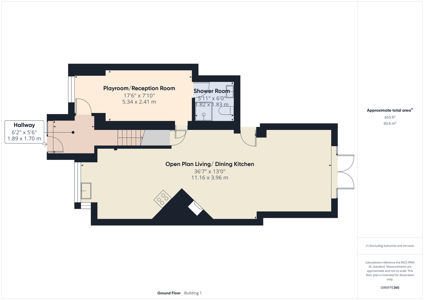
Occupying an attractive corner plot position, the property benefits from gas-fired central heating (via a combination boiler) and UPVC double glazing. The accommodation briefly comprises: a welcoming reception hallway, front reception room with a modern shower room off, refitted kitchen featuring a range of integrated appliances. To the rear, an impressive open-plan living/dining/family room boasts a feature wood-burning fire, vaulted ceiling, and French doors opening to the rear garden.

To the first floor, the landing gives access to three double bedrooms and a stylish refitted family bathroom.

Externally, the property enjoys a corner plot with low-maintenance gravelled frontage and side area, providing off-road parking. The enclosed rear garden is mainly laid to lawn with raised borders and gated side access. To the head of the garden (with access from Margreave Road) is a garage/workshop/gym (12’4″ x 17’1″ please note, there is no drop kerb).
Early Viewing Highly Recommended
Open Plan Living/Dining/Family Room With Wood Burning Fire
EPC Rating D, Standard Construction
Council Tax Band A, Freehold
Fitted Kitchen With Integrated Appliances
Reception Room/Playroom With Modern Shower Room Off


Entrance Hallway

Playroom/Reception Room

Shower Room

Open Plan Living/Dining Kitchen

First Floor Landing

Bedroom One

Bedroom Two

Bedroom Three

Bathroom

Garage/Gym

Buyer Information:

1. Anti-Money Laundering (AML) Regulations: We are legally required to verify all purchasers. The cost is £24 (inc VAT) per person. 2. General: These sales particulars are intended as a general guide only. If any detail is especially important, please contact us—particularly if you’re travelling a long distance to view. 3. Measurements: All measurements are approximate and provided for guidance only. 4. Services: Services, equipment, and appliances have not been tested. Buyers should arrange their own surveys or inspections. 5. These details are given in good faith but do not form part of any offer or contract. Information should be independently verified. Hannells Limited and its employees or agents are not authorised to make representations or warranties regarding the property.


Virtual Tour


Referral Fees

We recommend our preferred partner law firms who are solicitors selected by Us for their experience and efficiency in providing conveyancing services. We receive a referral fee of £225 - £250 per completed transaction. They are independent professionals upon whom You can rely for independent and confidential advice. Their conveyancing charges are available on request. We recommend our preferred partner Mortgage intermediaries who are mortgage specialists available to provide you with the advice you need and who will take care of everything from explaining options and helping you select the right mortgage, to choosing the most suitable protection for you and your family and handling the whole application process. We receive a referral fee of approximately £350 per completed transaction. We recommend our preferred partner Insurance Company who provide Buildings and Contents Insurance. We receive a referral fee of approximately £25 per completed transaction. We recommend our preferred partner Removal Company for home removals. We receive a referral fee of £50 per completed transaction. Prospective purchasers are NOT obliged to use our preferred partner services.

Property Features

  • Substantially Extended And Versatile Semi Detached Home
  • Open Plan Living/dining/family Room With Wood Burning Fire
  • Council Tax Band A, Freehold
  • Reception Room/playroom With Modern Shower Room Off
  • Generous Corner Plot With Parking To Front Elevation
  • Gas Central Heating And Double Glazing
  • Early Viewing Recommended
  • Early Viewing Highly Recommended
  • Epc Rating D, Standard Construction
  • Fitted Kitchen With Integrated Appliances
  • Modern Family Bathroom
  • Garage/workshop
  • Close To Local Amenities
86
array(2) { ["post_type"]=> string(6) "branch" ["meta_query"]=> array(1) { [0]=> array(3) { ["key"]=> string(14) "related_branch" ["value"]=> string(4) ""86"" ["compare"]=> string(4) "LIKE" } } }

Chaddesden Branch

Located

Hannells Estate Agents
513-515 Nottingham Road
Chaddesden
Derby
DE21 6LZ


Opening Times

Mon – Fri: 09:00am – 17:30pm
Sat: 09:00am – 16:00pm
Sun: Closed

Tel: 01332 281400

Social share

Floorplans

/

Related Properties