Back to search results

Beatty Street, Alvaston

Offers in excess of £140,000

Full Description

No Upward Chain! In need of a little refurbishment but offering excellent potential is this traditional two double bedroom, semi-detached home. Offering generous living space with an open plan kitchen/diner, on street parking and a fantastic rear garden, along with being ideally located close to amenities this property is ideal for both first time buyers and BTL investors alike!

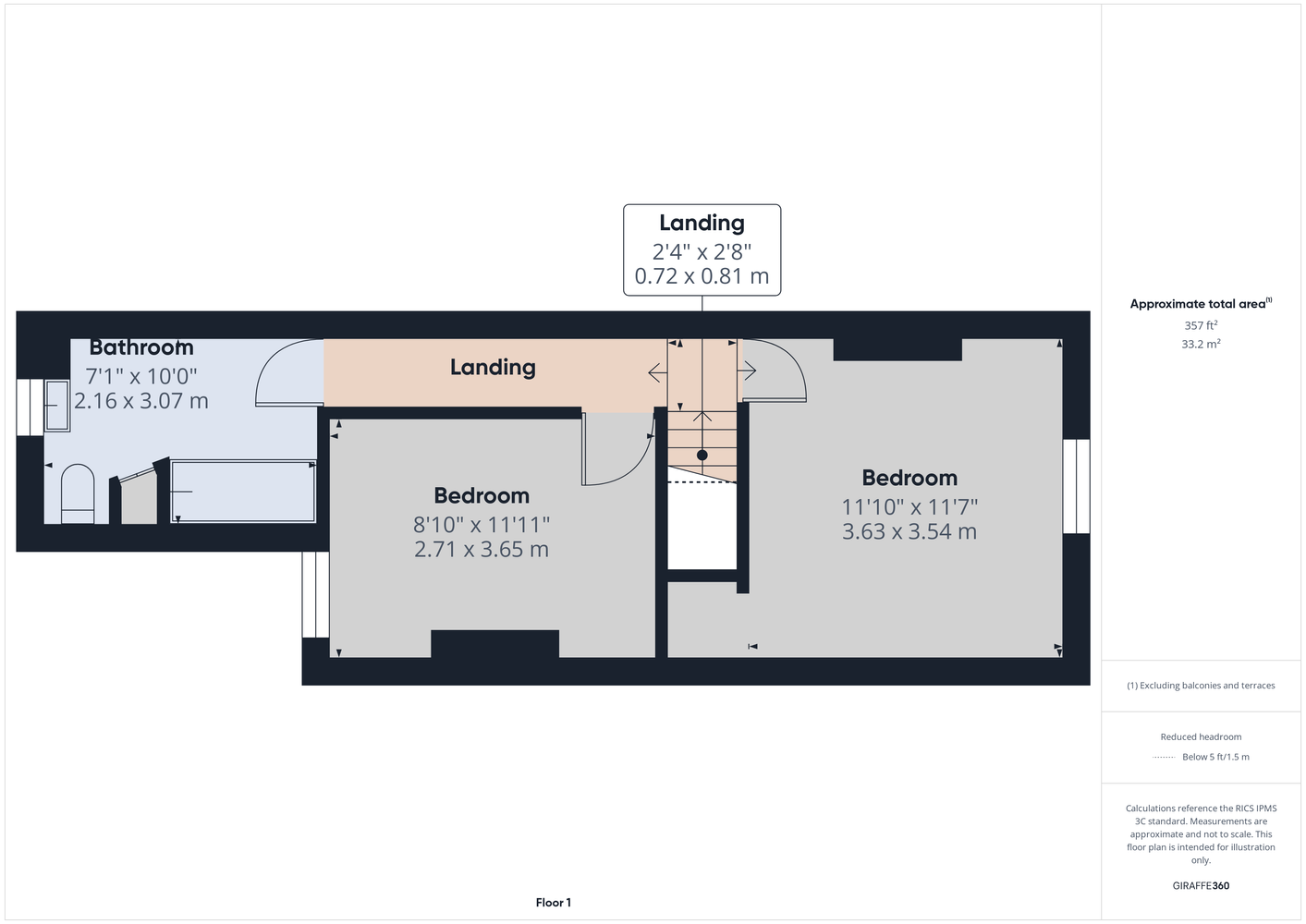
Benefitting from uPVC double glazing and gas central heating, the accommodation in brief comprises: Entrance Hall; spacious lounge to the front, a separate dining room with access down to the cellar and opening through to the kitchen at the rear. To the first floor there are two fantastic double bedrooms and a four piece bathroom.

To the front of the property is on street parking whilst to the rear is a well-proportioned garden with decked seating areas, lawn and fenced boundaries.

Beatty Street is ideally positioned for those seeking convenience, with a wealth of local amenities close by. The property is within easy reach of popular schools, a variety of shops, and a range of leisure facilities. Alvaston Park, with its scenic walking trails and play areas, is a short walk away, offering outdoor enjoyment for all ages. For commuters, the property benefits from excellent transport links, with the Derby Railway Station, A6 and major bus routes nearby providing quick access to Derby city centre and surrounding areas.
Two-Bedroom, Semi-Detached Home
EPC Rating D
Freehold
Council Tax Band A
Standard Construction
On Street Parking


Reception Hallway

Lounge

Dining Room

Kitchen

Landing

Bedroom

Bedroom

Bathroom

Outside WC Space


Referral Fees

We recommend our preferred partner law firms who are solicitors selected by Us for their experience and efficiency in providing conveyancing services. We receive a referral fee of £225 - £250 per completed transaction. They are independent professionals upon whom You can rely for independent and confidential advice. Their conveyancing charges are available on request. We recommend our preferred partner Mortgage intermediaries who are mortgage specialists available to provide you with the advice you need and who will take care of everything from explaining options and helping you select the right mortgage, to choosing the most suitable protection for you and your family and handling the whole application process. We receive a referral fee of approximately £350 per completed transaction. We recommend our preferred partner Insurance Company who provide Buildings and Contents Insurance. We receive a referral fee of approximately £25 per completed transaction. We recommend our preferred partner Removal Company for home removals. We receive a referral fee of £50 per completed transaction. Prospective purchasers are NOT obliged to use our preferred partner services.

Property Features

  • No Upward Chain
  • Epc Rating D
  • Council Tax Band A
  • On Street Parking
  • Two-bedroom, Semi-detached Home
  • Freehold
  • Standard Construction
  • In Need Of Some Refurbishment
85
array(2) { ["post_type"]=> string(6) "branch" ["meta_query"]=> array(1) { [0]=> array(3) { ["key"]=> string(14) "related_branch" ["value"]=> string(4) ""85"" ["compare"]=> string(4) "LIKE" } } }

Alvaston Branch

Located

Hannells Estate Agents
27 Shardlow Road
Alvaston
Derby
DE24 0JG


Opening Times

Mon – Fri: 09:00am – 17:30pm
Sat: 09:00am – 16:00pm
Sun: Closed

Tel: 01332 573130

Social share

Floorplans

/