Back to search results

Eton Street, Wilmorton

Sold (STC)

Full Description

** In partnership with SDL Auctions ** Auction Date: Thursday 25th September 2025 Starting at 9am. A three-bedroom, mid-terraced property located in Wilmorton, requiring refurbishment throughout but being ideally located for access into the City Centre, Pride Park, Rolls-Royce and Derby Railway Station – making it a fantastic opportunity for a future BTL investment!

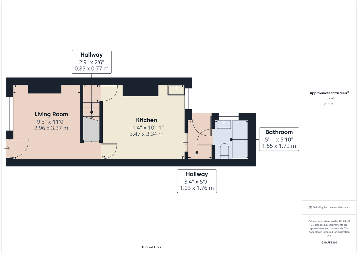
In brief, the accommodation comprises; living room, kitchen and a bathroom to the rear. Found to the first floor are two double bedrooms, a galleried first floor landing and a third single bedroom to the rear.

Outside there is a good size rear garden with side access and to the front on street parking.

With excellent access to local amenities, Rolls-Royce and road links including the A50, A6 and M1, an early viewing is highly recommended to avoid disappointment.

Auction Details:

The sale of this property will take place on the stated date by way of Auction Event and is being sold under an Unconditional sale type.

Binding contracts of sale will be exchanged at the point of sale.

All sales are subject to SDL Property Auctions Buyers Terms. Properties located in Scotland will be subject to applicable Scottish law.

Auction Deposit and Fees:

The following deposits and non- refundable auctioneers fees apply:

• 5% deposit (subject to a minimum of £5,000)

• Buyers Fee of 4.8% of the purchase price (subject to a minimum of £6,000 inc. VAT).

The Buyers Fee does not contribute to the purchase price, however it will be taken into account when calculating the Stamp Duty Land Tax for the property (known as Land and Buildings Transaction Tax for properties located in Scotland), because it forms part of the chargeable consideration for the property.

There may be additional fees listed in the Special Conditions of Sale, which will be available to view within the Legal Pack. You must read the Legal Pack carefully before bidding.

Additional Information:

For full details about all auction methods and sale types please refer to the Auction Conduct Guide which can be viewed on the SDL Property Auctions home page.

This guide includes details on the auction registration process, your payment obligations and how to view the Legal Pack (and any applicable Home Report for residential Scottish properties).

Guide Price & Reserve Price:

Each property sold is subject to a Reserve Price. The Reserve Price will be within + or – 10% of the Guide Price. The Guide Price is issued solely as a guide so that a buyer can consider whether or not to pursue their interest. A full definition can be found within the Buyers Terms.
Auction Date 25th September 2025
Three-Bedroom, Mid-Terrace Home
EPC Rating C
Freehold
Council Tax Band A
Standard Construction


Living Room

Kitchen

Bathroom

Bedroom 1

Bedroom 2

Bedroom Three

Buyer Information:

1. General: These sales particulars are intended as a general guide only. If any detail is especially important, please contact us—particularly if you’re travelling a long distance to view. 2. Measurements: All measurements are approximate and provided for guidance only. 3. Services: Services, equipment, and appliances have not been tested. Buyers should arrange their own surveys or inspections. 4. These details are given in good faith but do not form part of any offer or contract. Information should be independently verified. Hannells Limited and its employees or agents are not authorised to make representations or warranties regarding the property.


Referral Fees

We recommend our preferred partner law firms who are solicitors selected by Us for their experience and efficiency in providing conveyancing services. We receive a referral fee of £225 - £250 per completed transaction. They are independent professionals upon whom You can rely for independent and confidential advice. Their conveyancing charges are available on request. We recommend our preferred partner Mortgage intermediaries who are mortgage specialists available to provide you with the advice you need and who will take care of everything from explaining options and helping you select the right mortgage, to choosing the most suitable protection for you and your family and handling the whole application process. We receive a referral fee of approximately £350 per completed transaction. We recommend our preferred partner Insurance Company who provide Buildings and Contents Insurance. We receive a referral fee of approximately £25 per completed transaction. We recommend our preferred partner Removal Company for home removals. We receive a referral fee of £50 per completed transaction. Prospective purchasers are NOT obliged to use our preferred partner services.

Property Features

  • In Partnership With Sdl Auctions
  • Three-bedroom, Mid-terrace Home
  • Freehold
  • Standard Construction
  • Auction Date 25th September 2025
  • Epc Rating C
  • Council Tax Band A
  • On Street Parking
85
array(2) { ["post_type"]=> string(6) "branch" ["meta_query"]=> array(1) { [0]=> array(3) { ["key"]=> string(14) "related_branch" ["value"]=> string(4) ""85"" ["compare"]=> string(4) "LIKE" } } }

Alvaston Branch

Located

Hannells Estate Agents
27 Shardlow Road
Alvaston
Derby
DE24 0JG


Opening Times

Mon – Fri: 09:00am – 17:30pm
Sat: 09:00am – 16:00pm
Sun: Closed

Tel: 01332 573130

Social share

Floorplans

/

Related Properties