Back to search results

Foxdell Way, Chellaston

Sold (STC)

Full Description

** PREMIER PROPERTY ** A beautifully presented and thoughtfully extended detached family home, arranged over three floors with generously proportioned, five-bedroom accommodation. Both the master bedroom and second floor bedroom enjoy their own en-suite facilities, while a separate family bathroom serves the remaining three bedrooms, ensuring comfort and convenience for the whole household!

The current owners have taken great care with the outdoor spaces. To the front, there is ample off-road parking for multiple vehicles. The rear garden has been attractively landscaped to include a neat lawn, wrap-around decking with an integrated pond, and several seating areas. A superb outbuilding, currently used as a garden bar and entertaining space, creates the perfect setting for gatherings with family and friends.

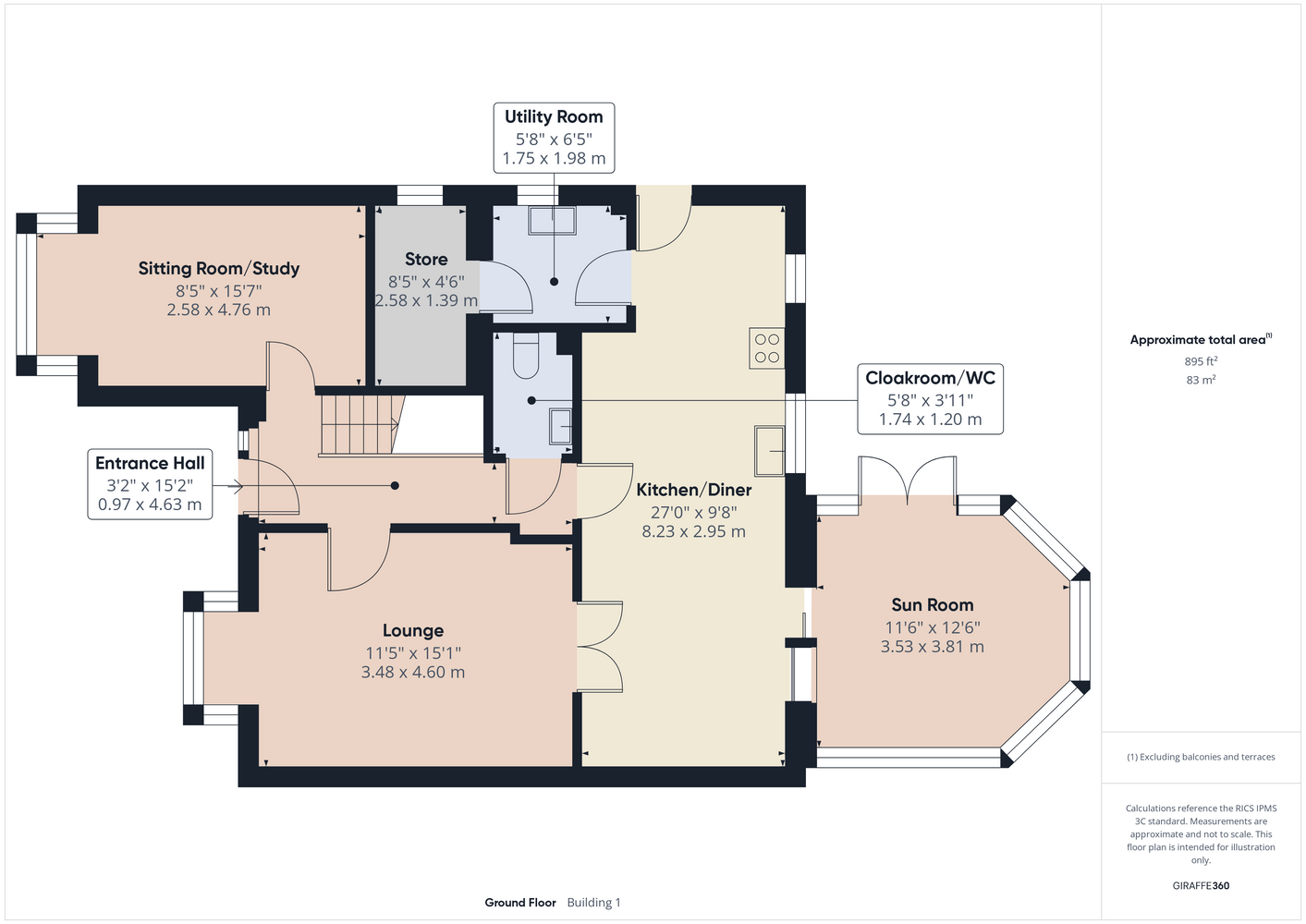
Internally, the double-glazed and centrally heated accommodation briefly comprises: Reception hall; lounge with double doors opening into the open-plan kitchen/diner; sun room; sitting room/study; cloakroom/WC; utility room; store room – all completing the ground floor accommodation. On the first floor are four bedrooms, the largest of which benefits from an en-suite shower room, alongside the main family bathroom. The second floor showcases a stunning open-plan bedroom suite with a full en-suite featuring double sinks, a jacuzzi bath and a separate shower cubicle.

Foxdell Way is ideally situated for modern family living, with excellent local schools, shops and services close by. The area offers easy access to nearby parks, leisure facilities and scenic walking routes, making it ideal for outdoor enthusiasts. Excellent transport links connect the property to Derby, Nottingham and surrounding areas, while East Midlands Airport and major road networks (A50, A38, and M1) are within easy reach, ensuring both convenience and connectivity.
EPC Rating D
Council Tax Band E
Off Road Parking For Multiple Vehicles
Freehold
Two Reception Rooms, Sun Room & Three Bathrooms
Beautiful Garden With Outbuilding For Entertaining


Reception Hallway

Lounge

Kitchen/Diner

Sun Room

Sitting Room/Study

Cloakroom/WC

Utility Room

Store

First Floor Landing

Master Bedroom

Master En suite

Bedroom

Bedroom

Bedroom

Bathroom

Second Floor Bedroom

En suite

Garden Building

Buyer Information

1. Anti-Money Laundering (AML) Regulations: We are legally required to verify all purchasers. The cost is £24 (inc VAT) per person. 2. General: These sales particulars are intended as a general guide only. If any detail is especially important, please contact us—particularly if you’re travelling a long distance to view. 3. Measurements: All measurements are approximate and provided for guidance only. 4. Services: Services, equipment, and appliances have not been tested. Buyers should arrange their own surveys or inspections. 5. These details are given in good faith but do not form part of any offer or contract. Information should be independently verified. Hannells Limited and its employees or agents are not authorised to make representations or warranties regarding the property.


Virtual Tour


Referral Fees

We recommend our preferred partner law firms who are solicitors selected by Us for their experience and efficiency in providing conveyancing services. We receive a referral fee of £225 - £250 per completed transaction. They are independent professionals upon whom You can rely for independent and confidential advice. Their conveyancing charges are available on request. We recommend our preferred partner Mortgage intermediaries who are mortgage specialists available to provide you with the advice you need and who will take care of everything from explaining options and helping you select the right mortgage, to choosing the most suitable protection for you and your family and handling the whole application process. We receive a referral fee of approximately £350 per completed transaction. We recommend our preferred partner Insurance Company who provide Buildings and Contents Insurance. We receive a referral fee of approximately £25 per completed transaction. We recommend our preferred partner Removal Company for home removals. We receive a referral fee of £50 per completed transaction. Prospective purchasers are NOT obliged to use our preferred partner services.

Property Features

  • Five-bedroom, Three-storey, Detached Residence Of Standard Construction
  • Council Tax Band E
  • Freehold
  • Beautiful Garden With Outbuilding For Entertaining
  • Epc Rating D
  • Off Road Parking For Multiple Vehicles
  • Two Reception Rooms, Sun Room & Three Bathrooms
  • Popular Location Close To Amenities
20
array(2) { ["post_type"]=> string(6) "branch" ["meta_query"]=> array(1) { [0]=> array(3) { ["key"]=> string(14) "related_branch" ["value"]=> string(4) ""20"" ["compare"]=> string(4) "LIKE" } } }

Chellaston Branch

Located

Hannells Estate Agents
17 High Street
Chellaston
Derby
DE73 6TB


Opening Times

Mon – Fri: 09:00am – 17:30pm
Sat: 09:00am – 16:00pm
Sun: Closed

Tel: 01332 705505

Social share

Floorplans

/

Related Properties