Back to search results

Grange Street, Normanton

Sold (STC)

Full Description

A well-presented and deceptively spacious, four-bedroom mid-terrace turn of the century town house, boasting excellent living space, generous bedrooms and a private rear garden!

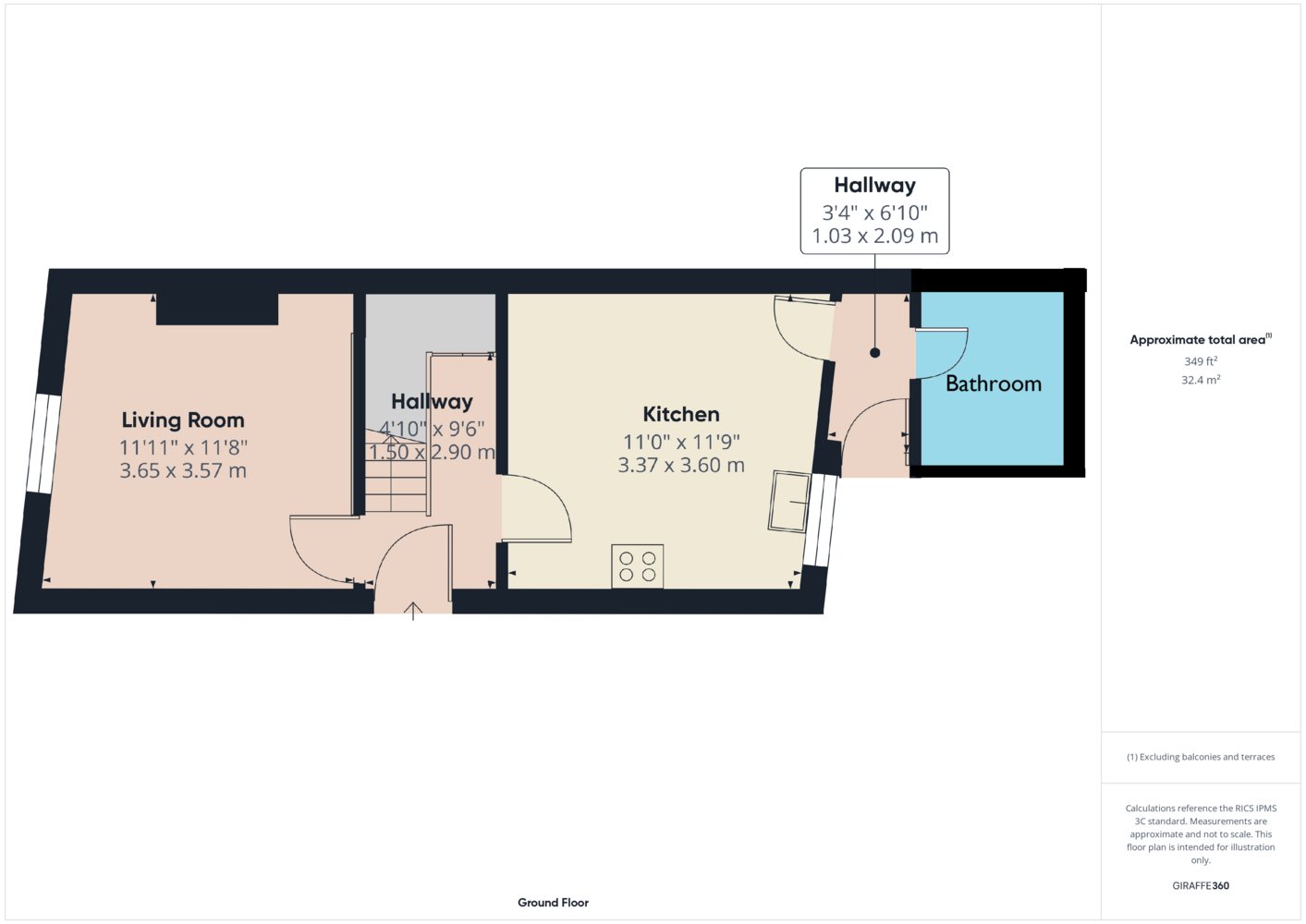
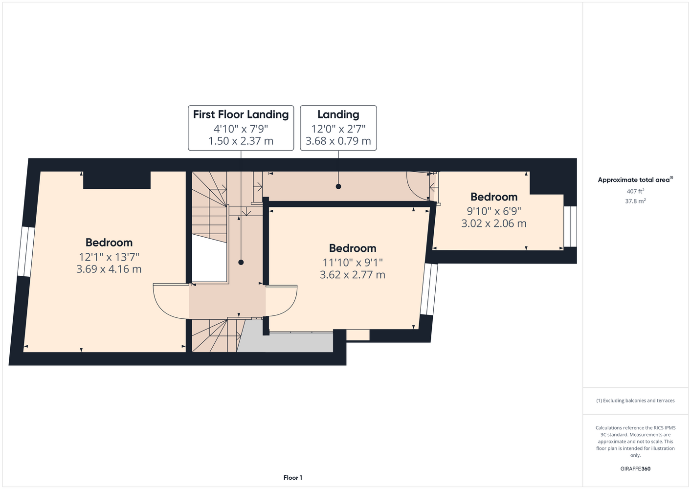
The accommodation on offer briefly comprises Entrance hall; living room; breakfast kitchen; rear hall; family bathroom – all to the ground floor. To the first floor are three generous double bedrooms, all accessed via the first floor landing. To the second floor is a further extended bedroom with Velux windows and eaves storage space.

Outside, the property benefits from a low maintenance rear garden with side access, mainly paved patio with a small lawned area.

Grange Street is extremely convenient for local amenities, including shops and schools as well as excellent road and transport links to Derby, Derby Royal Hospital and Rolls-Royce Sinfin.

Viewings are essential to appreciate the size of the accommodation on offer.
EPC Rating D
Council Tax Band A
On-Street Parking
Freehold
Deceptively Spacious Family Size Accommodation
Excellent Bedroom Space


Entrance Hall

Living Room

Breakfast Kitchen

Rear Hall

Ground Floor Bathroom

First Floor Landing

Bedroom One

Bedroom Two

Bedroom Three

Second Floor Landing

Bedroom Four

Buyer Information

1. Anti-Money Laundering (AML) Regulations: We are legally required to verify all purchasers. The cost is £24 (inc VAT) per person. 2. General: These sales particulars are intended as a general guide only. If any detail is especially important, please contact us—particularly if you’re travelling a long distance to view. 3. Measurements: All measurements are approximate and provided for guidance only. 4. Services: Services, equipment, and appliances have not been tested. Buyers should arrange their own surveys or inspections. 5. These details are given in good faith but do not form part of any offer or contract. Information should be independently verified. Hannells Limited and its employees or agents are not authorised to make representations or warranties regarding the property.


Virtual Tour


Referral Fees

We recommend our preferred partner law firms who are solicitors selected by Us for their experience and efficiency in providing conveyancing services. We receive a referral fee of £225 - £250 per completed transaction. They are independent professionals upon whom You can rely for independent and confidential advice. Their conveyancing charges are available on request. We recommend our preferred partner Mortgage intermediaries who are mortgage specialists available to provide you with the advice you need and who will take care of everything from explaining options and helping you select the right mortgage, to choosing the most suitable protection for you and your family and handling the whole application process. We receive a referral fee of approximately £350 per completed transaction. We recommend our preferred partner Insurance Company who provide Buildings and Contents Insurance. We receive a referral fee of approximately £25 per completed transaction. We recommend our preferred partner Removal Company for home removals. We receive a referral fee of £50 per completed transaction. Prospective purchasers are NOT obliged to use our preferred partner services.

Property Features

  • Four-bedroom Traditional Town House Of Standard Construction
  • Council Tax Band A
  • Freehold
  • Excellent Bedroom Space
  • Easy Access To Local Amenities & Major Roads
  • Epc Rating D
  • On-street Parking
  • Deceptively Spacious Family Size Accommodation
  • Low Maintenance Rear Garden
87
array(2) { ["post_type"]=> string(6) "branch" ["meta_query"]=> array(1) { [0]=> array(3) { ["key"]=> string(14) "related_branch" ["value"]=> string(4) ""87"" ["compare"]=> string(4) "LIKE" } } }

Littleover Branch

Located

Hannells Estate Agents
272 Blagreaves Lane
Littleover
Derby
DE23 1PS


Opening Times

Mon – Fri: 09:00am – 17:30pm
Sat: 09:00am – 16:00pm
Sun: Closed

Tel: 01332 773399

Social share

Floorplans

/

Related Properties