Back to search results

Holyrood Close, Spondon

Sold (STC)

Full Description

Offered with no upward chain, this delightful two-bedroom terraced bungalow enjoys a bright living space in a peaceful setting. This property is flooded with natural light, creating a warm and inviting atmosphere in every room, this property is not to be missed!

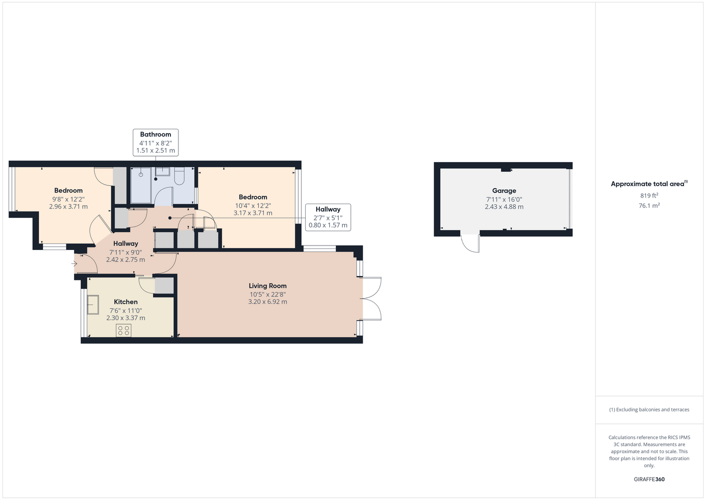
The accommodation is supplemented by gas central heating and UPVC double glazing and inside you’ll find a spacious hallway, with ample storage throughout, modern fitted kitchen, two generously sized bedrooms, fitted bathroom with shower, and lounge/diner featuring patio doors that open directly onto a private, south-facing garden.

To the rear, there is a low-maintenance patio garden with decking, ideal for entertaining or unwinding, along with a garage and dedicated parking space for added convenience. To the front of the property is a neat fore garden with lawn and outhouse.

The property is well situated for Spondon and its range of shops, schools and transport links together with excellent access for Derby City Centre and road links including the A52, M1 motorway, A50 and Nottingham East Midlands Airport.
EPC Rating D, Standard Construction
Council Tax Band A, Freehold
Two Double Bedrooms
Ample Storage Throughout
South-Facing Rear Garden
Off-Road Parking & Garage


Entrance Hallway

Kitchen

Lounge/Diner

Bedroom One

Bedroom Two

Bathroom

Outside

There is a lawned fore garden to the front elevation with useful storage shed and to the rear is a low maintenance garden being mainly paved with decked patio area and gated access to the garage and parking.

Garage

With up and over door and courtesy door to rear garden.

Buyers Information:

1. Anti-Money Laundering (AML) Regulations: We are legally required to verify all purchasers. The cost is £24 (inc VAT) per person. 2. General: These sales particulars are intended as a general guide only. If any detail is especially important, please contact us—particularly if you’re travelling a long distance to view. 3. Measurements: All measurements are approximate and provided for guidance only. 4. Services: Services, equipment, and appliances have not been tested. Buyers should arrange their own surveys or inspections. 5. These details are given in good faith but do not form part of any offer or contract. Information should be independently verified. Hannells Limited and its employees or agents are not authorised to make representations or warranties regarding the property.


Referral Fees

We recommend our preferred partner law firms who are solicitors selected by Us for their experience and efficiency in providing conveyancing services. We receive a referral fee of £225 - £250 per completed transaction. They are independent professionals upon whom You can rely for independent and confidential advice. Their conveyancing charges are available on request. We recommend our preferred partner Mortgage intermediaries who are mortgage specialists available to provide you with the advice you need and who will take care of everything from explaining options and helping you select the right mortgage, to choosing the most suitable protection for you and your family and handling the whole application process. We receive a referral fee of approximately £350 per completed transaction. We recommend our preferred partner Insurance Company who provide Buildings and Contents Insurance. We receive a referral fee of approximately £25 per completed transaction. We recommend our preferred partner Removal Company for home removals. We receive a referral fee of £50 per completed transaction. Prospective purchasers are NOT obliged to use our preferred partner services.

Property Features

  • Delightful Terraced Bungalow, No Upward Chain
  • Council Tax Band A, Freehold
  • Ample Storage Throughout
  • Off-road Parking & Garage
  • Viewing Highly Recommended
  • Epc Rating D, Standard Construction
  • Two Double Bedrooms
  • South-facing Rear Garden
  • Spacious Lounge/diner
86
array(2) { ["post_type"]=> string(6) "branch" ["meta_query"]=> array(1) { [0]=> array(3) { ["key"]=> string(14) "related_branch" ["value"]=> string(4) ""86"" ["compare"]=> string(4) "LIKE" } } }

Chaddesden Branch

Located

Hannells Estate Agents
513-515 Nottingham Road
Chaddesden
Derby
DE21 6LZ


Opening Times

Mon – Fri: 09:00am – 17:30pm
Sat: 09:00am – 16:00pm
Sun: Closed

Tel: 01332 281400

Social share

Floorplans

/

Related Properties