Back to search results

Leslie Close, Littleover

Offers in excess of £180,000

Full Description

A well presented and thoughtfully re-arranged one bedroom semi-detached bungalow, occupying an excellent position in one of Littleover’s most sought after cul-de-sac locations and having the benefit of off road parking.

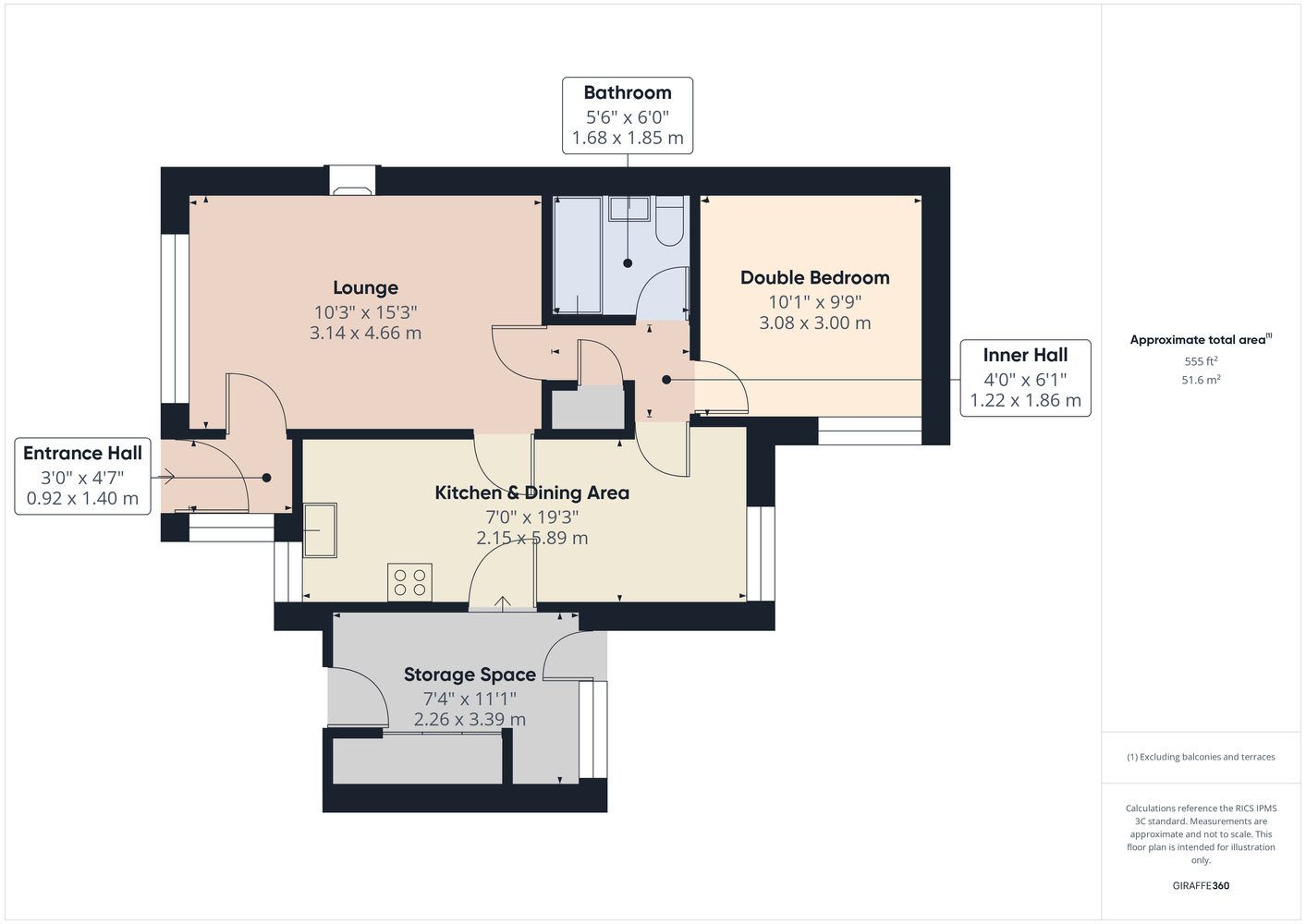
Originally a two-bedroom bungalow, the current layout is ideal for anyone looking to prioritise traditional living space, but can also simply be reverted back to its original two bedroom configuration – the current accommodation layout briefly comprises: Entrance hall; lounge; open plan kitchen and dining room; primary double bedroom with built-in wardrobes; refurbished modern bathroom; converted attached storage space.

Outside, to the front of the property is a paved driveway providing off road parking and giving access to the storage area via a roller garage door. The rear garden has an imitation grass lawn, patio seating and pathways, and an excellent storage shed.

Leslie Close is conveniently situated for local amenities including shops, schools and excellent road and transport links to Derby City Centre, Derby Royal Hospital, Littleover and Rolls-Royce Sinfin.

Viewings are essential to appreciate the standard of the accommodation and the position of the property on offer.
EPC Rating D
Originally Two Bedrooms
Council Tax Band B
Ample Driveway Parking
Re-arranged Living Space
Freehold


Entrance Hall

Lounge

Open Plan Kitchen & Dining Room

Double Bedroom

Bathroom

Converted Storage Area

Buyer Information

1. Anti-Money Laundering (AML) Regulations: We are legally required to verify all purchasers. The cost is £24 (inc VAT) per person. 2. General: These sales particulars are intended as a general guide only. If any detail is especially important, please contact us—particularly if you’re travelling a long distance to view. 3. Measurements: All measurements are approximate and provided for guidance only. 4. Services: Services, equipment, and appliances have not been tested. Buyers should arrange their own surveys or inspections. 5. These details are given in good faith but do not form part of any offer or contract. Information should be independently verified. Hannells Limited and its employees or agents are not authorised to make representations or warranties regarding the property.


Virtual Tour


Referral Fees

We recommend our preferred partner law firms who are solicitors selected by Us for their experience and efficiency in providing conveyancing services. We receive a referral fee of £225 - £250 per completed transaction. They are independent professionals upon whom You can rely for independent and confidential advice. Their conveyancing charges are available on request. We recommend our preferred partner Mortgage intermediaries who are mortgage specialists available to provide you with the advice you need and who will take care of everything from explaining options and helping you select the right mortgage, to choosing the most suitable protection for you and your family and handling the whole application process. We receive a referral fee of approximately £350 per completed transaction. We recommend our preferred partner Insurance Company who provide Buildings and Contents Insurance. We receive a referral fee of approximately £25 per completed transaction. We recommend our preferred partner Removal Company for home removals. We receive a referral fee of £50 per completed transaction. Prospective purchasers are NOT obliged to use our preferred partner services.

Property Features

  • A Double Bedroom Semi-detached Bungalow Of Standard Construction
  • Originally Two Bedrooms
  • Ample Driveway Parking
  • Freehold
  • Additional Converted Integral Storage Room
  • Easy Access To Local Amenities & Major Roads
  • Epc Rating D
  • Council Tax Band B
  • Re-arranged Living Space
  • Open Plan Kitchen & Dining Room
  • Low Maintenance Rear Garden
87
array(2) { ["post_type"]=> string(6) "branch" ["meta_query"]=> array(1) { [0]=> array(3) { ["key"]=> string(14) "related_branch" ["value"]=> string(4) ""87"" ["compare"]=> string(4) "LIKE" } } }

Littleover Branch

Located

Hannells Estate Agents
272 Blagreaves Lane
Littleover
Derby
DE23 1PS


Opening Times

Mon – Fri: 09:00am – 17:30pm
Sat: 09:00am – 16:00pm
Sun: Closed

Tel: 01332 773399

Social share

Floorplans

/

Related Properties