Back to search results

Loscoe Road, Heanor

Offers in excess of £300,000

Full Description

Located close to the heart of Heanor town centre is this unique property, ideal for a growing family or first time buyer. Occupying a good sized plot and set back from the road, the property features three bedrooms along with offering extended and spacious downstairs living accommodation. Benefitting from ample off-road parking with a detached double garage, well-maintained rear garden, uPVC double glazing and gas central heating, the property must be viewed to fully appreciate the accommodation on offer.

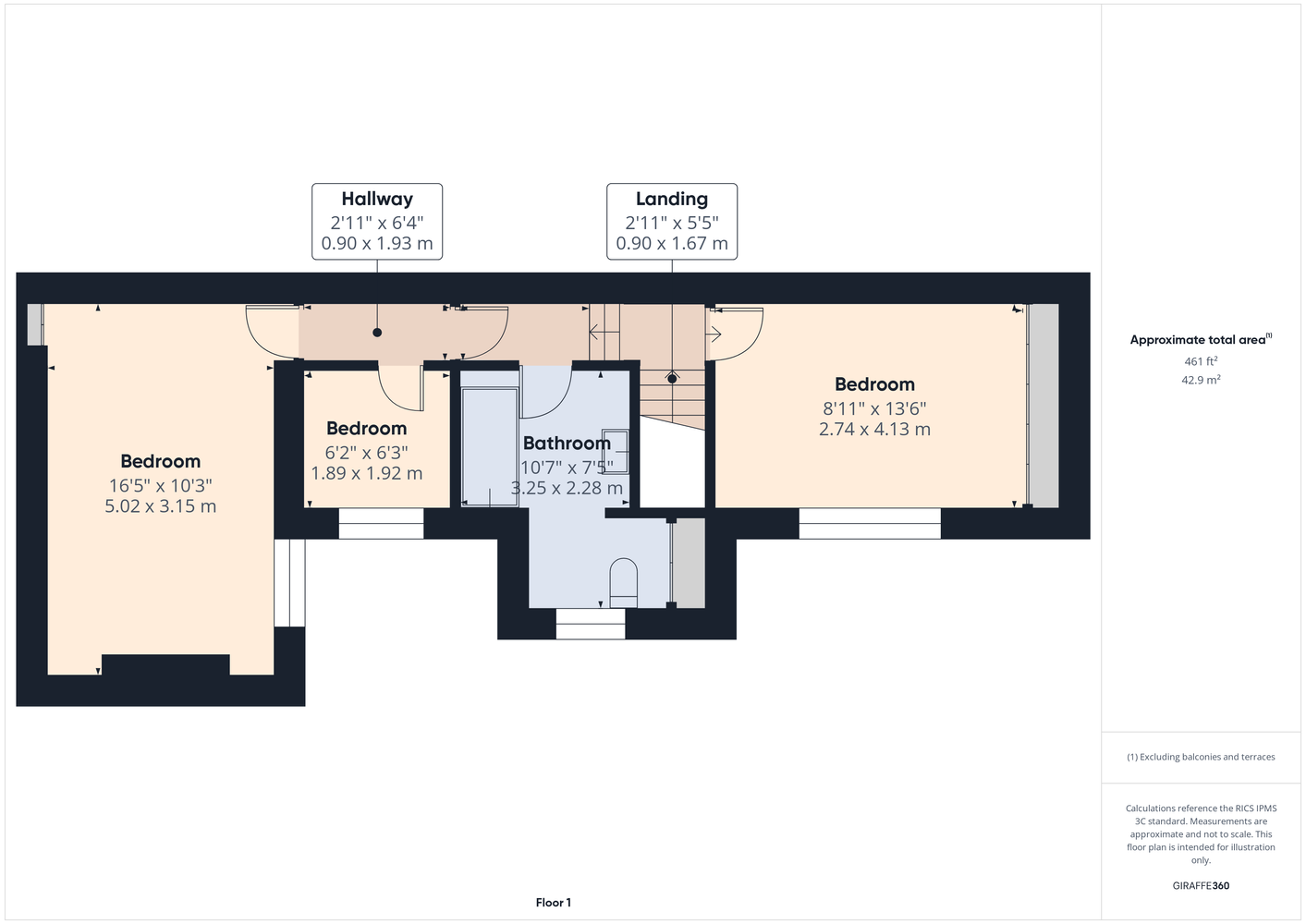
In brief, the accommodation comprises; Entrance hall, downstairs cloakroom/WC, a spacious living/dining room having a feature fireplace, a modern breakfast kitchen having Quartz worktops, integrated appliances, breakfast bar and French doors leading out onto the garden and separate utility room. To the first floor are three bedrooms, first floor landing and and family bathroom having a three piece suite.

To the outside is a substantial sized driveway providing off-road parking for several vehicles together with a detached double garage, a good sized lawn with raised flower beds, garden shed an enclosed patio area together with fenced boundaries.
Spacious & Extended Downstairs Living Accommodation
EPC Rating D, Standard Construction
Council Tax Band A, Freehold
Ample Off Road Parking With A Double Garage
Modern Fitted Breakfast Kitchen With Separate Utility Room
Ideal For A First Time Buyer Or Investor


Entrance Door To:

Living / Dining Room

Cloaks/WC

Breakfast Kitchen

Utility Room

First Floor Landing

Further Landing Area

Bedroom One

Bedroom Two

Bedroom Three

Spacious Family Bathroom

Buyer Information:

1. Anti-Money Laundering (AML) Regulations: We are legally required to verify all purchasers. The cost is £24 (inc VAT) per person. 2. General: These sales particulars are intended as a general guide only. If any detail is especially important, please contact us—particularly if you’re travelling a long distance to view. 3. Measurements: All measurements are approximate and provided for guidance only. 4. Services: Services, equipment, and appliances have not been tested. Buyers should arrange their own surveys or inspections. 5. These details are given in good faith but do not form part of any offer or contract. Information should be independently verified. Hannells Limited and its employees or agents are not authorised to make representations or warranties regarding the property.


Virtual Tour


Referral Fees

We recommend our preferred partner law firms who are solicitors selected by Us for their experience and efficiency in providing conveyancing services. We receive a referral fee of £225 - £250 per completed transaction. They are independent professionals upon whom You can rely for independent and confidential advice. Their conveyancing charges are available on request. We recommend our preferred partner Mortgage intermediaries who are mortgage specialists available to provide you with the advice you need and who will take care of everything from explaining options and helping you select the right mortgage, to choosing the most suitable protection for you and your family and handling the whole application process. We receive a referral fee of approximately £350 per completed transaction. We recommend our preferred partner Insurance Company who provide Buildings and Contents Insurance. We receive a referral fee of approximately £25 per completed transaction. We recommend our preferred partner Removal Company for home removals. We receive a referral fee of £50 per completed transaction. Prospective purchasers are NOT obliged to use our preferred partner services.

Property Features

  • Well-presented Three Bedroom Semi-detached Home
  • Epc Rating D, Standard Construction
  • Ample Off Road Parking With A Double Garage
  • Ideal For A First Time Buyer Or Investor
  • Located Close To Local Shops & Amenities
  • Internal Viewing Is Highly Recommended
  • Spacious & Extended Downstairs Living Accommodation
  • Council Tax Band A, Freehold
  • Modern Fitted Breakfast Kitchen With Separate Utility Room
  • Good Sized Plot
  • Upvc Double Glazing & Gas Central Heating
86
array(2) { ["post_type"]=> string(6) "branch" ["meta_query"]=> array(1) { [0]=> array(3) { ["key"]=> string(14) "related_branch" ["value"]=> string(4) ""86"" ["compare"]=> string(4) "LIKE" } } }

Chaddesden Branch

Located

Hannells Estate Agents
513-515 Nottingham Road
Chaddesden
Derby
DE21 6LZ


Opening Times

Mon – Fri: 09:00am – 17:30pm
Sat: 09:00am – 16:00pm
Sun: Closed

Tel: 01332 281400

Social share

Floorplans

/

Related Properties