Back to search results

Robincroft Road, Allestree

Offers in excess of £425,000

Full Description

Located in the idyllic and historic village centre of Allestree, this spacious four-bedroom chalet bungalow backs onto beautiful green space and offers a generous lounge, open-plan dining kitchen and a beautiful garden. With an in-and-out driveway, garage and NO UPWARD CHAIN, it will make a fantastic home!

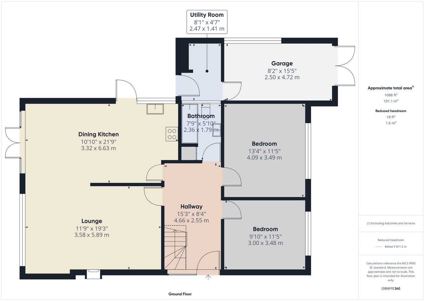
Benefitting from uPVC double glazing and gas central heating, the accommodation in brief comprises: Entrance hall with stairs off to the first floor; spacious lounge with central fireplace and inset log burner; open plan dining kitchen with French doors opening to the rear garden; ground floor utility area at the rear of the garage; two double ground floor bedrooms; a spacious ground floor bathroom; first floor landing with additional spacious built-in storage area and double first floor bedroom with built-in wardrobes and a good size en suite toilet and hand wash basin and a second first floor double bedroom.

To the front of the property is a neat garden space along with an in-and-out driveway providing ample off-road parking and giving access to a good-sized garage with power and lighting. To the rear of the property is a generous enclosed garden with elevated patio giving views over beautiful green space, shaped lawn and mixed flower and shrubbery beds.

Robincroft Road is close to the historic centre of the original Allestree Village and is conveniently situated for local amenities including shops, well-regarded schools, regular bus services to and from Derby City Centre and has good access to all major roads. Allestree Park, Markeaton Park and Darley Park are also all within easy reach.
EPC Rating E
Council Tax Band D
No Onward Chain
Good Size Garage & In-and-Out Driveway
Overlooking Pleasant Green Space
Spacious Lounge & Dining Kitchen


Entrance Hall

Lounge

Bedroom One

Dining Kitchen

Bedroom Two

Bathroom

Utility Room

First Floor Landing

Bedroom Three

En suite WC

Bedroom Four

Store

Garage

Buyer Information

1. Anti-Money Laundering (AML) Regulations: We are legally required to verify all purchasers. The cost is £24 (inc VAT) per person. 2. General: These sales particulars are intended as a general guide only. If any detail is especially important, please contact us—particularly if you’re travelling a long distance to view. 3. Measurements: All measurements are approximate and provided for guidance only. 4. Services: Services, equipment, and appliances have not been tested. Buyers should arrange their own surveys or inspections. 5. These details are given in good faith but do not form part of any offer or contract. Information should be independently verified. Hannells Limited and its employees or agents are not authorised to make representations or warranties regarding the property.


Virtual Tour


Referral Fees

We recommend our preferred partner law firms who are solicitors selected by Us for their experience and efficiency in providing conveyancing services. We receive a referral fee of £225 - £250 per completed transaction. They are independent professionals upon whom You can rely for independent and confidential advice. Their conveyancing charges are available on request. We recommend our preferred partner Mortgage intermediaries who are mortgage specialists available to provide you with the advice you need and who will take care of everything from explaining options and helping you select the right mortgage, to choosing the most suitable protection for you and your family and handling the whole application process. We receive a referral fee of approximately £350 per completed transaction. We recommend our preferred partner Insurance Company who provide Buildings and Contents Insurance. We receive a referral fee of approximately £25 per completed transaction. We recommend our preferred partner Removal Company for home removals. We receive a referral fee of £50 per completed transaction. Prospective purchasers are NOT obliged to use our preferred partner services.

Property Features

  • Spacious Four-bedroom Chalet Bungalow Of Standard Construction
  • Council Tax Band D
  • Good Size Garage & In-and-out Driveway
  • Spacious Lounge & Dining Kitchen
  • Ground Floor Bathroom
  • Good Size Garden
  • Epc Rating E
  • No Onward Chain
  • Overlooking Pleasant Green Space
  • Two Ground Floor Bedrooms
  • Two First Floor Bedrooms & Master En-suite Wc
66
array(2) { ["post_type"]=> string(6) "branch" ["meta_query"]=> array(1) { [0]=> array(3) { ["key"]=> string(14) "related_branch" ["value"]=> string(4) ""66"" ["compare"]=> string(4) "LIKE" } } }

Allestree Branch

Located

Hannells Estate Agents
18 Park Farm Shopping Centre
Allestree
Derby
DE22 2QN


Opening Times

Mon – Fri: 09:00am – 17:30pm
Sat: 09:00am – 16:00pm
Sun: Closed

Tel: 01332 556633

Social share

Floorplans

/

Related Properties