Back to search results

Rosamonds Ride, Littleover

Offers in excess of £350,000

Full Description

** PREMIER PROPERTY ** A phenomenal four-bedroom semi-detached family home, generously extended throughout and boasting additional gardens, over 500 sq ft of garden rooms and extensive ground floor living space – offered to the market with NO ONWARD CHAIN!

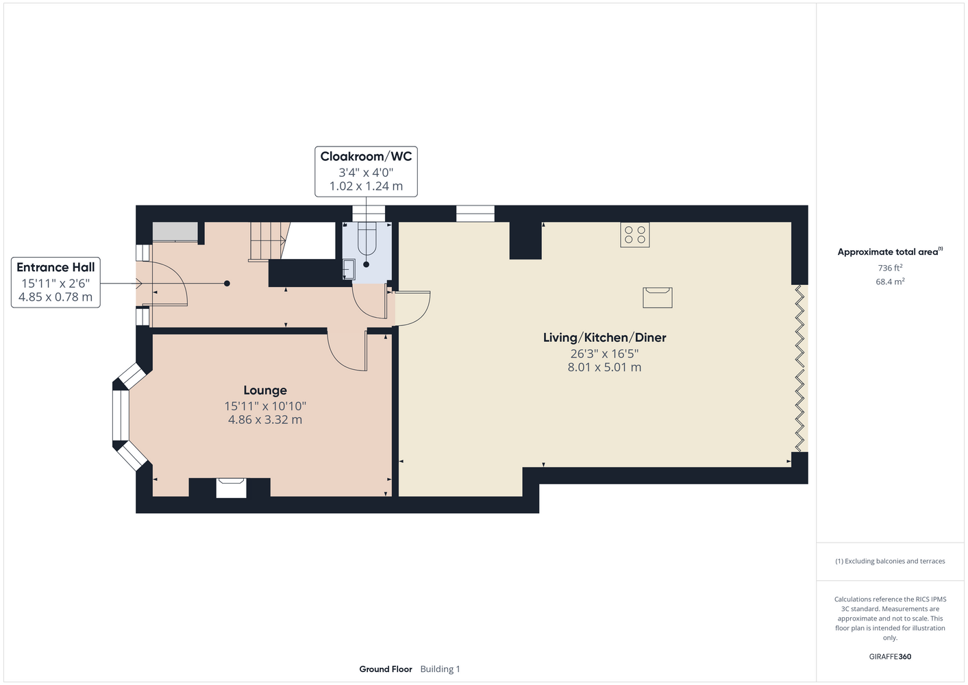
The accommodation on offer briefly comprises: Entrance hall; ground floor cloakroom/WC; bay-fronted lounge; sprawling open plan living/kitchen/diner with large island storage and sink, inset American-style fridge/freezer space, underfloor heating system and full width bi-fold doors opening out onto the rear garden. To the first floor are three bedrooms (two double and the fourth single bedroom) – all accessed via the first floor landing. A further staircase leads to the second floor master suite – an excellent king-size double bedroom with Juliet balcony overlooking the rear garden, two separate walk-in wardrobe spaces, ultra modern en-suite bathroom.

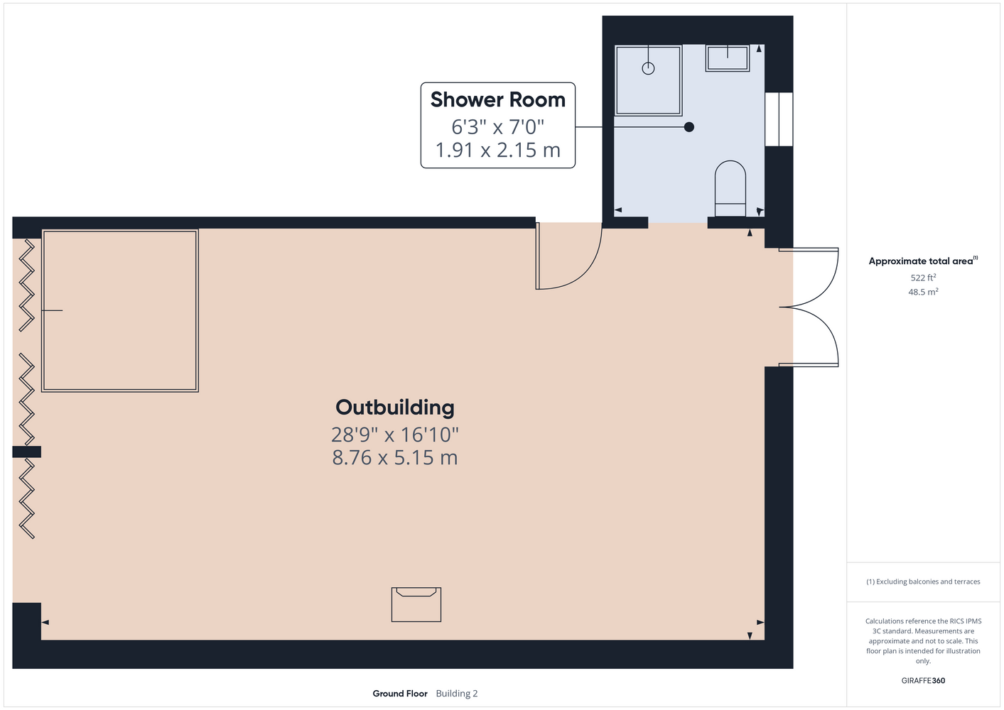
Outside, the property boasts a recently modernised rear garden, mainly laid to lawn with patio pathways, open air and undercover seating and entertaining areas, as well as a large second grass lawn to the very rear of the plot. The outbuildings themselves comprise of a converted garage space with kitchenette, first floor storage room and secure shed-style area to the rear, and an impressively sized bar fully fitted bar and hot-tub building with private shower room and further garage style storage area with up-and-over door.

Rosamonds Ride is conveniently situated for local amenities, including shops and schools, as well as excellent road and public transport links to Derby Royal Hospital, Littleover Village, Rolls-Royce Sinfin and Derby City Centre.

Viewings are truly essential to appreciate the size and standard of the accommodation on offer.
EPC Rating D
Council Tax Band B
Off Road Parking
No Onward Chain
Variety Of Outdoor Living & Garden Rooms
Fantastic Open-Plan Living/Dining/Kitchen Space


Entrance Hall

Lounge

Open Plan Living/Dining/Kitchen

Ground Floor Cloakroom/WC

First Floor Landing

Bedroom Two

Bedroom Three

Bedroom Four

Family Bathroom

Second Floor Landing

Master Bedroom

Walk-in Wardrobe One

Walk-in Wardrobe Two

En suite Bathroom

Hot Tub & Bar Room Outbuilding

En suite Shower Room

Buyer Information

1. Anti-Money Laundering (AML) Regulations: We are legally required to verify all purchasers. The cost is £24 (inc VAT) per person. 2. General: These sales particulars are intended as a general guide only. If any detail is especially important, please contact us—particularly if you’re travelling a long distance to view. 3. Measurements: All measurements are approximate and provided for guidance only. 4. Services: Services, equipment, and appliances have not been tested. Buyers should arrange their own surveys or inspections. 5. These details are given in good faith but do not form part of any offer or contract. Information should be independently verified. Hannells Limited and its employees or agents are not authorised to make representations or warranties regarding the property.


Virtual Tour


Referral Fees

We recommend our preferred partner law firms who are solicitors selected by Us for their experience and efficiency in providing conveyancing services. We receive a referral fee of £225 - £250 per completed transaction. They are independent professionals upon whom You can rely for independent and confidential advice. Their conveyancing charges are available on request. We recommend our preferred partner Mortgage intermediaries who are mortgage specialists available to provide you with the advice you need and who will take care of everything from explaining options and helping you select the right mortgage, to choosing the most suitable protection for you and your family and handling the whole application process. We receive a referral fee of approximately £350 per completed transaction. We recommend our preferred partner Insurance Company who provide Buildings and Contents Insurance. We receive a referral fee of approximately £25 per completed transaction. We recommend our preferred partner Removal Company for home removals. We receive a referral fee of £50 per completed transaction. Prospective purchasers are NOT obliged to use our preferred partner services.

Property Features

  • Impressively Extended, Four-bedroom Semi-detached Home Of Standard Construction
  • Council Tax Band B
  • No Onward Chain
  • Fantastic Open-plan Living/dining/kitchen Space
  • Easy Access To Local Amenities & Major Roads
  • Epc Rating D
  • Off Road Parking
  • Variety Of Outdoor Living & Garden Rooms
  • Additional Gardens
87
array(2) { ["post_type"]=> string(6) "branch" ["meta_query"]=> array(1) { [0]=> array(3) { ["key"]=> string(14) "related_branch" ["value"]=> string(4) ""87"" ["compare"]=> string(4) "LIKE" } } }

Littleover Branch

Located

Hannells Estate Agents
272 Blagreaves Lane
Littleover
Derby
DE23 1PS


Opening Times

Mon – Fri: 09:00am – 17:30pm
Sat: 09:00am – 16:00pm
Sun: Closed

Tel: 01332 773399

Social share

Floorplans

/

Related Properties