Back to search results

Stanley Street, Derby

Offers in excess of £180,000

Full Description

Located to offer excellent access to the city and the University of Derby campuses, this spacious, well-presented and modernised traditional terrace home offers two reception rooms (one of which is currently configured to offer a fourth bedrooms) modern fitted kitchen, garden room, fitted bathroom and separate shower room. Viewing is highly recommended!

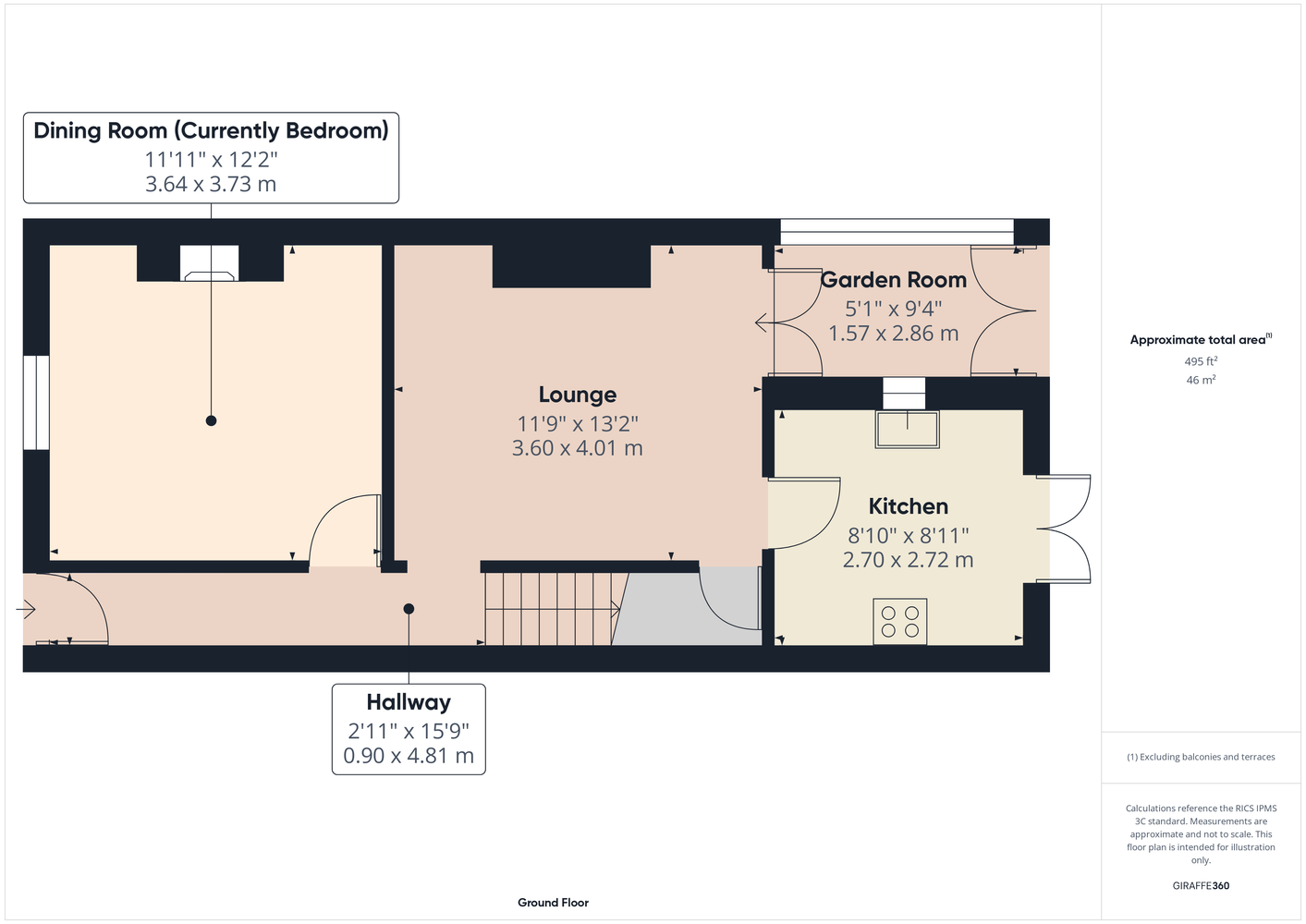
Benefitting from uPVC double glazing and gas central heating, the accommodation in brief comprises: Entrance Hall with feature Minton style tiled flooring; spacious lounge; separate dining room; modern and well-appointed fitted kitchen; garden room; first floor split level landing; three generous first floor bedrooms; fitted first floor bathroom and a separate fitted shower room.

To the rear of the property is a good sized and enclosed garden space.

Stanley Street lies conveniently for local amenities, including shops and schools, as well as excellent road and transport links to Derby City Centre, Derby Royal Hospital and Derby University. A viewing is truly essential to appreciate the size and standard of the accommodation on offer.
Modernised Throughout
Freehold & Standard Construction
EPC Rating E
Council Tax Band A
On Street Parking
Two Reception Rooms & Additional Garden Room


Entrance Hall

Lounge

Dining Room

Kitchen

Garden Room

First Floor Landing

Bedroom One

Bedroom Two

Bedroom Three

Bathroom

Shower Room

Buyer Information:

1. Anti-Money Laundering (AML) Regulations: We are legally required to verify all purchasers. The cost is £24 (inc VAT) per person. 2. General: These sales particulars are intended as a general guide only. If any detail is especially important, please contact us—particularly if you’re travelling a long distance to view. 3. Measurements: All measurements are approximate and provided for guidance only. 4. Services: Services, equipment, and appliances have not been tested. Buyers should arrange their own surveys or inspections. 5. These details are given in good faith but do not form part of any offer or contract. Information should be independently verified. Hannells Limited and its employees or agents are not authorised to make representations or warranties regarding the property.


Referral Fees

We recommend our preferred partner law firms who are solicitors selected by Us for their experience and efficiency in providing conveyancing services. We receive a referral fee of £225 - £250 per completed transaction. They are independent professionals upon whom You can rely for independent and confidential advice. Their conveyancing charges are available on request. We recommend our preferred partner Mortgage intermediaries who are mortgage specialists available to provide you with the advice you need and who will take care of everything from explaining options and helping you select the right mortgage, to choosing the most suitable protection for you and your family and handling the whole application process. We receive a referral fee of approximately £350 per completed transaction. We recommend our preferred partner Insurance Company who provide Buildings and Contents Insurance. We receive a referral fee of approximately £25 per completed transaction. We recommend our preferred partner Removal Company for home removals. We receive a referral fee of £50 per completed transaction. Prospective purchasers are NOT obliged to use our preferred partner services.

Property Features

  • Spacious Three-bedroom Terrace Home
  • Freehold & Standard Construction
  • Council Tax Band A
  • Two Reception Rooms & Additional Garden Room
  • Modernised Throughout
  • Epc Rating E
  • On Street Parking
  • Fitted Kitchen, Bathroom & Separate Shower Room
66
array(2) { ["post_type"]=> string(6) "branch" ["meta_query"]=> array(1) { [0]=> array(3) { ["key"]=> string(14) "related_branch" ["value"]=> string(4) ""66"" ["compare"]=> string(4) "LIKE" } } }

Allestree Branch

Located

Hannells Estate Agents
18 Park Farm Shopping Centre
Allestree
Derby
DE22 2QN


Opening Times

Mon – Fri: 09:00am – 17:30pm
Sat: 09:00am – 16:00pm
Sun: Closed

Tel: 01332 556633

Social share

Floorplans

/

Related Properties