Back to search results

Uttoxeter New Road, Derby

Asking Price £375,000

Full Description

A substantial, five-bedroom mid-terraced town house conveniently located for Derby City Centre and positioned on a bus route to the The Royal Derby Hospital. Brought to the market with no upward chain, the property would ideally suit a growing family and holds room to convert the property to an HMO, subject to planning and permissions. With a spacious and versatile layout retaining some character features, the property features ample off road parking, an enclosed rear garden, uPVC double glazing and gas central heating. Internal viewings are essential to appreciate the size of the accommodation on offer!

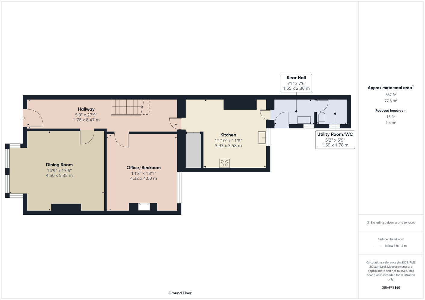
In brief, the accommodation comprises; A welcoming entrance hallway, a dining room with a bay window, a sizable study /bedroom, a modern fitted breakfast kitchen with access to the cellar, rear hallway and a utility room having a downstairs WC. Found to the first floor is a large lounge, a double bedroom, a galleried first floor landing, family bathroom, a separate WC and a modern fitted shower room. On the second floor are a further three double bedrooms and landing area.

At the front of the property is a driveway providing off road parking for multiple vehicles, whilst at the rear of the property is a private and enclosed garden with a patio area, well established flower beds, fruit trees along with fenced and walled boundaries.

Uttoxeter New Road is ideally situated for access to local shops and schools, major road links including the A38 and direct access into Derby City Centre. Internal viewings are highly recommended.
Sizable Property With Spacious Living Accommodation Over Three Floors
EPC Rating D
Council Tax Band D
Freehold
Ample Off Road Parking
Suitable For A Growing Family Or Investor Looking For A HMO


Hallway

Dining Room

Office/Bedroom

Kitchen

Rear Hall

Utility Room/WC

Landing

Lounge

Bedroom

Bathroom

WC

Shower Room

Landing

Bedroom

Bedroom

Bedroom

Buyer Information:

1. Anti-Money Laundering (AML) Regulations: We are legally required to verify all purchasers. The cost is £24 (inc VAT) per person. 2. General: These sales particulars are intended as a general guide only. If any detail is especially important, please contact us—particularly if you’re travelling a long distance to view. 3. Measurements: All measurements are approximate and provided for guidance only. 4. Services: Services, equipment, and appliances have not been tested. Buyers should arrange their own surveys or inspections. 5. These details are given in good faith but do not form part of any offer or contract. Information should be independently verified. Hannells Limited and its employees or agents are not authorised to make representations or warranties regarding the property.


Referral Fees

We recommend our preferred partner law firms who are solicitors selected by Us for their experience and efficiency in providing conveyancing services. We receive a referral fee of £225 - £250 per completed transaction. They are independent professionals upon whom You can rely for independent and confidential advice. Their conveyancing charges are available on request. We recommend our preferred partner Mortgage intermediaries who are mortgage specialists available to provide you with the advice you need and who will take care of everything from explaining options and helping you select the right mortgage, to choosing the most suitable protection for you and your family and handling the whole application process. We receive a referral fee of approximately £350 per completed transaction. We recommend our preferred partner Insurance Company who provide Buildings and Contents Insurance. We receive a referral fee of approximately £25 per completed transaction. We recommend our preferred partner Removal Company for home removals. We receive a referral fee of £50 per completed transaction. Prospective purchasers are NOT obliged to use our preferred partner services.

Property Features

  • Five-bedroom, Standard Construction, Mid-terraced Town House
  • Epc Rating D
  • Freehold
  • Suitable For A Growing Family Or Investor Looking For A Hmo
  • Close To Derby City Centre & Bus Routes To The Royal Derby Hospital
  • Family Bathroom With Separate Wc & Additional Shower Room
  • Internal Viewing Is Highly Recommended
  • Sizable Property With Spacious Living Accommodation Over Three Floors
  • Council Tax Band D
  • Ample Off Road Parking
  • Well Maintained Interior
  • Enclosed Rear Garden
  • Upvc Double Glazing & Gas Central Heating
66
array(2) { ["post_type"]=> string(6) "branch" ["meta_query"]=> array(1) { [0]=> array(3) { ["key"]=> string(14) "related_branch" ["value"]=> string(4) ""66"" ["compare"]=> string(4) "LIKE" } } }

Allestree Branch

Located

Hannells Estate Agents
18 Park Farm Shopping Centre
Allestree
Derby
DE22 2QN


Opening Times

Mon – Fri: 09:00am – 17:30pm
Sat: 09:00am – 16:00pm
Sun: Closed

Tel: 01332 556633

Social share

Floorplans

/