Back to search results

Scarsdale Avenue, Allestree

Sold (STC)

Full Description

** PREMIER PROPERTY ** Located along a highly sought-after cul-de-sac in Allestree, this stunning and spacious four-bedroom detached home offers a generous entrance hall with feature wood flooring, a spacious lounge, a modern fitted kitchen opening to a spacious dining area, two first floor double-bedrooms, both with en-suites and a ground floor modern fitted shower room. With landscaped gardens to the rear, driveway and garage, it MUST be viewed internally to be fully appreciated!

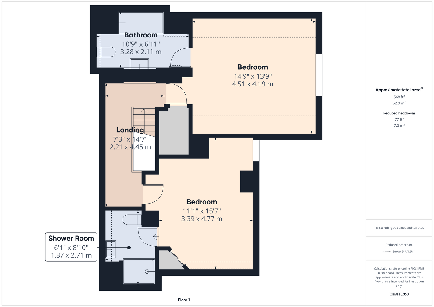
Benefitting from uPVC double glazing and gas central heating, the accommodation in brief comprises: Entrance Hall; spacious lounge with feature fireplace, double doors from the entrance hall and French doors to the rear garden; spacious modern fitted kitchen opening to a generous dining/living area; separate utility room; two spacious ground floor bedrooms; modern fitted ground floor shower room with underfloor heating; first floor landing; master bedroom with en-suite bathroom with underfloor heating and a second double first floor bedroom with en-suite shower room.

To the front of the property is a generous driveway providing ample off-road parking and giving access to an integral garage with up and over door. The garage has been split to provide a storage area at the front and the utility room behind.

To the rear of the property is a generous garden with elevated patio seating area, lower patio area, lawn, mixed flower and shrubbery beds and mature fruit trees.

Scarsdale Avenue is conveniently situated for access to useful amenities including shops, schools, public transport routes, the University, recreational facilities including Markeaton Park, Allestree Park, Darley Park and Allestree recreational ground, together with useful road links via the A52, A6, A38 and A50 networks.
Ground Floor Shower Room Plus Two En-Suites
EPC Rating C
Council Tax Band C
Freehold
Driveway & Garage
Spacious Lounge


Entrance Hall

Lounge

Kitchen

Dining/Living Room

Utility Room

Bedroom Three

Bedroom Four

Shower Room

Garage Store

First Floor Landing

Bedroom One

En-Suite Bathroom

Bedroom Two

En-Suite Shower Room

Buyer Information:

1. Anti-Money Laundering (AML) Regulations: We are legally required to verify all purchasers. The cost is £24 (inc VAT) per person. 2. General: These sales particulars are intended as a general guide only. If any detail is especially important, please contact us—particularly if you’re travelling a long distance to view. 3. Measurements: All measurements are approximate and provided for guidance only. 4. Services: Services, equipment, and appliances have not been tested. Buyers should arrange their own surveys or inspections. 5. These details are given in good faith but do not form part of any offer or contract. Information should be independently verified. Hannells Limited and its employees or agents are not authorised to make representations or warranties regarding the property.


Virtual Tour


Referral Fees

We recommend our preferred partner law firms who are solicitors selected by Us for their experience and efficiency in providing conveyancing services. We receive a referral fee of £225 - £250 per completed transaction. They are independent professionals upon whom You can rely for independent and confidential advice. Their conveyancing charges are available on request. We recommend our preferred partner Mortgage intermediaries who are mortgage specialists available to provide you with the advice you need and who will take care of everything from explaining options and helping you select the right mortgage, to choosing the most suitable protection for you and your family and handling the whole application process. We receive a referral fee of approximately £350 per completed transaction. We recommend our preferred partner Insurance Company who provide Buildings and Contents Insurance. We receive a referral fee of approximately £25 per completed transaction. We recommend our preferred partner Removal Company for home removals. We receive a referral fee of £50 per completed transaction. Prospective purchasers are NOT obliged to use our preferred partner services.

Property Features

  • Modernised, Stylish & Spacious, Standard Construction Four-bedroom Detached Home
  • Epc Rating C
  • Freehold
  • Spacious Lounge
  • Enclosed Rear Garden
  • Ground Floor Shower Room Plus Two En-suites
  • Council Tax Band C
  • Driveway & Garage
  • Modern Fitted Kitchen & Dining Area
66
array(2) { ["post_type"]=> string(6) "branch" ["meta_query"]=> array(1) { [0]=> array(3) { ["key"]=> string(14) "related_branch" ["value"]=> string(4) ""66"" ["compare"]=> string(4) "LIKE" } } }

Allestree Branch

Located

Hannells Estate Agents
18 Park Farm Shopping Centre
Allestree
Derby
DE22 2QN


Opening Times

Mon – Fri: 09:00am – 17:30pm
Sat: 09:00am – 16:00pm
Sun: Closed

Tel: 01332 556633

Social share

Floorplans

/

Related Properties